№ 2969805
Аренда имущественного комплекса
Советский район, Нижний Новгород
740 000 руб./мес.
Район:
Советский
Адрес:
ул. Республиканская, д. 24а
Площадь земельного участка:
0,62 га
Общая площадь зданий:
2 447,2 м²
Объект:
имущественный комплекс
Назначение:
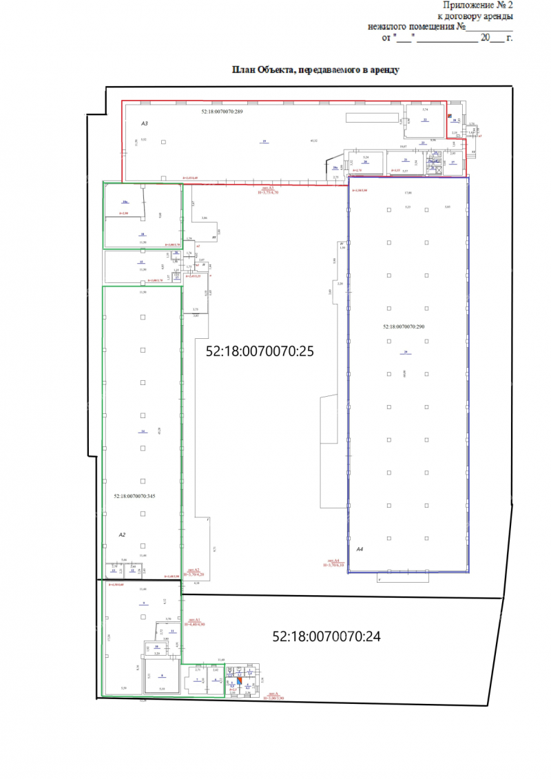
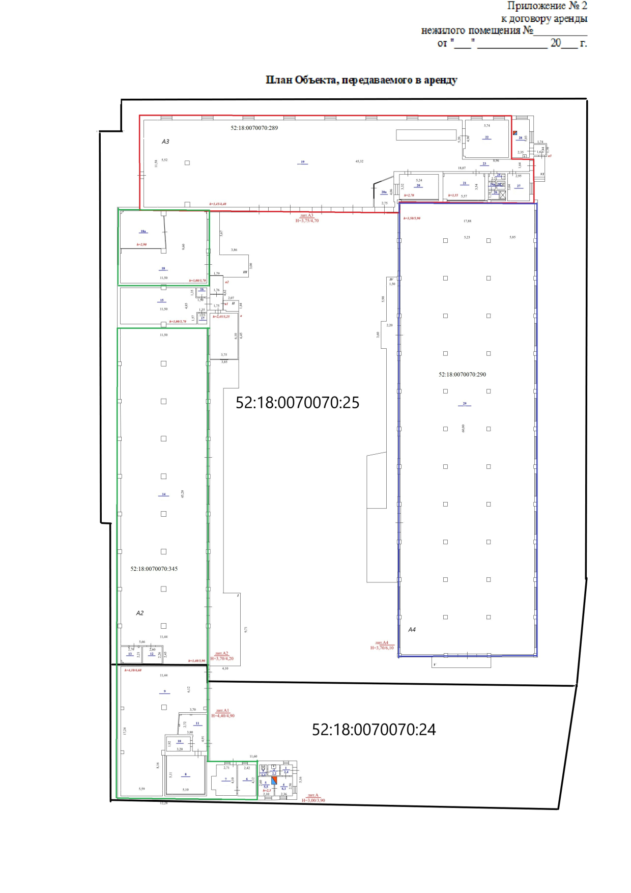
Сдается в аренду на длительный срок складской комплекс общей площадью 2 447,2 кв. м. с земельным участком площадью 6 152 кв. м. (под парковку и заезд автотранспорта). Отапливаемая площадь склада 565,2 кв.м., неотапливаемая 1 882 кв.м. Территория комплекса огорожена забором с автоматическим воротами. На въезде располагается отапливаемая будка охранника. В стоимость аренды не включена стоимость электротехнического обслуживания, обслуживание ХВС, ГВС, водоотведения и отопления. НДС 22% включен. Есть возможность рассмотрения аренды не всего комплекса, а складов по отдельности. Предпочтение отдается арендаторам всего комплекса.
Назначение: склады (склады теплые, склады холодные)
Электричество
есть
Водопровод
есть
Газ
есть
Канализация
есть
Сергей Викторович
Телефоны продавца

