№ 2962580
Аренда помещения на наб. Верхне-Волжская, д. 2Б
Нижегородский район, Нижний Новгород
3 054 440 руб./мес.
Район:
Нижегородский
Площадь:
803,8 м²
Этаж / этажность:
1 / 2
Высота потолков:
Отдельный вход:
1
Объект:
помещение в жилом доме
Назначение:
офисное
Арт. 127673969
Сдается в аренду коммерческое помещение премиального уровня в центре города в непосредственной близости от Нижегородского Кремля и одной из главных достопримечательностей города Чкаловской лестницы. В шаговой доступности находятся ключевые административные учреждения города и области. Очень высокие пешеходный и автомобильный трафики. Помещение имеет два входа: отдельный вход с Красной линии и запасной выход с торца здания.
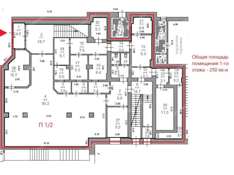
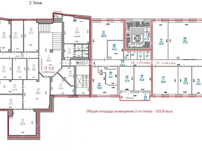
Общая площадь помещения включает в себя: 1-ый этаж площадью 250 кв.м. и 2-ой этаж площадью 553,8 кв.м.
В настоящее время первый этаж оборудован под операционный офис банка, перепланировка под другой вид бизнеса возможна.
Второй этаж имеет кабинетно-коридорную планировку с зоной ресепшен, гостевым холлом и отдельными кабинетами, общим количеством 23 шт. (метраж от 10,3 кв.м. до 30,9 кв.м.), а также на этаже расположены: оборудованная кухня площадью 25,6 кв.м., серверная и 4 санузла.
Обеспечено наличие всех необходимых инженерных систем, отвечающих СНиП.
Есть возможность аренды парковочных мест на подземном паркинге.
Готовы рассмотреть ценовое предложение от арендатора.
Ремонт
есть
Телефон
нет
Интернет
нет
Мебель
нет
Протасов Ярослав
Коммерсант
Телефоны продавца





















