№ 2953610
Аренда помещения на ш. Комсомольское, д. 3
Канавинский район, Нижний Новгород
210 000 руб./мес.
Район:
Канавинский
Адрес:
ш. Комсомольское, д. 3
Площадь:
600 м²
Объект:
помещение в нежилом здании
Назначение:
складское
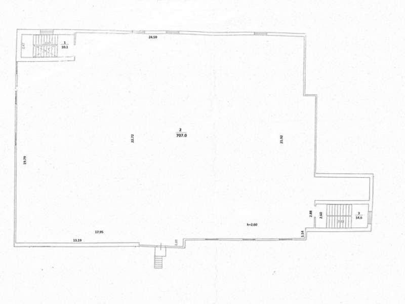
Аренда холодного склада в складском комплексе.Нижнй Новгород. Канавинский район. Комсомольское шоссе. Склад прямоугольной формы. Общая площадь 600 кв.м. Расположен в подвале. Высота потолков - 2,7 м. Ворота с торца здания. Ровные полы - бетон. На складе выделено помещение под офис. Свой санузел. Склад не отапливаемый. Охраняемая территория. Удобная транспортная развязка - географический центр города. Дополнительно оплачивается эл.энергия. Сдается от юр.лица. Ставка аренды без НДС.
Бунаков Алексей т
Центр Коммерческой Недвижимости
Телефоны продавца
Похожие предложения
238 000 руб./мес.
350 руб./м²
Нижний Новгород, Канавинский район
ул. Октябрьской Революции, д. 43а
680 м²
складское
Позвонить




















