№ 2953826
Аренда помещения на ул. Долгополова, д. 50
Канавинский район, Нижний Новгород
54 925 руб./мес.
Район:
Канавинский
Адрес:
ул. Долгополова, д. 50
Площадь:
84,5 м²
Объект:
помещение в нежилом здании
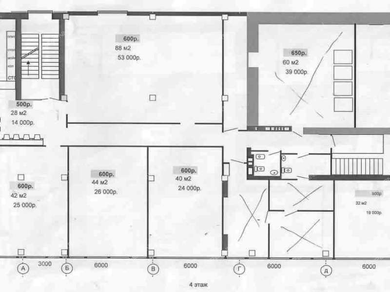
Сдается в аренду офис 85 м2 в административном здании на ул.Долгополова. Однообъемное помещение с окном. 4 этаж. Высокие потолки - 3,2 м. Требуется косметический ремонт (даются арендные каникулы). Есть приточно-вытяжная ветиляция, пожарная сигнализация кондиционеры. Охрана, видеонаблюдение. Своя парковка перед зданием. Удобная транспортная развязка, рядом остановка обществ. транспорта. Коммунальные платежи включены, кроме эл/эн и услуг связи, без НДС.
Похожие предложения
50 000 руб./мес.
568 руб./м²
Нижний Новгород, Канавинский район
ул. Октябрьской Революции, д. 39
88 м²
офисное
Позвонить
55 000 руб./мес.
625 руб./м²
Нижний Новгород, Канавинский район
ул. Октябрьской Революции, д. 39
88 м²
офисное
Позвонить
