№ 2961852
Аренда помещения на ул. Грузинская, д. 37
Нижегородский район, Нижний Новгород
115 967 руб./мес.
Район:
Нижегородский
Адрес:
ул. Грузинская, д. 37
Площадь:
111,4 м²
Назначение:
офисное
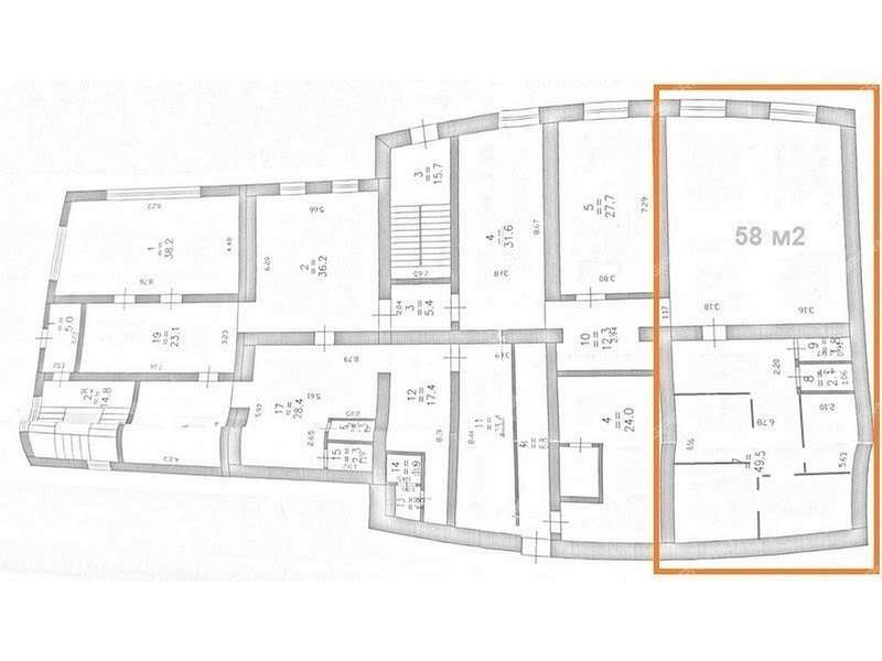
Сдаю помещение 111, 4 м2 под офис, студию красоты, и.т.п. на улице Грузинской. Расположено в высоком цоколе жилого дома (вход с уровня земли). Общий вход на несколько арендаторов. Есть возможность пользоваться отдельным входом. По планировке состоит из зала 58 м2., нескольких кабинетов. (без окон) и сан.узла. Дополнительно к аренде оплачиваются коммунальные платежи - 11 000 рублей. Договор с ИП, УСН. Шаговая доступность до площади Минина, улиц -Большая Покровская, Ошарская, Алексеевская. Поблизости есть продуктовый магазин, кафе. Шаговая доступность до остановок общественного транспорта.
Биткина Ирина т
Центр Коммерческой Недвижимости
Телефоны продавца
Похожие предложения
115 000 руб./мес.
1 000 руб./м²
Нижний Новгород, Нижегородский район
ул. Большая Печёрская, д. 45а
115 м²
ПСН
офисное
Позвонить
офисное
100 050 руб./мес.
870 руб./м²
Нижний Новгород, Нижегородский район
ул. Кожевенная, д. 1-1а лит А
115 м²
офисное
Позвонить














