№ 2945722
Аренда помещения на ул. Коммунистическая, д. 2
Канавинский район, Нижний Новгород
60 000 руб./мес.
Район:
Канавинский
Адрес:
ул. Коммунистическая, д. 2
Площадь:
107 м²
Год постройки:
1916
Этаж / этажность:
1 / 3
Высота потолков:
2,5 м
Отдельный вход:
1
Объект:
помещение в жилом доме
Назначение:
ПСН, офисное
Сдается в аренду помещение свободного назначения, расположенное в оживленном районе города с отличной транспортной доступностью.
Помещение недавно отремонтировано.
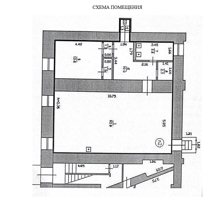
Возможна аренда по комнатам. Включает в себя большой зал/кабинет 45 кв.м. (50 тыс. все включено), изолированный кабинет 16 кв.м. (20 тыс. все включено), есть два небольших помещения под склад (5 и 10 тыс. все включено) – можно использовать под построчную/кухню, два холла/ресепшена и санузел.
Есть горячая вода, установлен бойлер. Общая площадь 107 кв.м. Подключено электричество 380В. Под двумя комнатами имеется достаточно глубокий подвал, можно использовать как склад.
Выгодное расположение высокий пешеходный и автомобильный трафик. В непосредственной близости ЖД Вокзал, ТЦ ЦУМ, Республика, Мебельный базар. В шаговой доступности станция метро Московская, остановки общественного транспорта.
Отдельный вход с улицы по красной линии. Помещение двухуровневое: часть цоколь, часть 1 этаж. Три окна выходят во двор. Нет проблем с парковкой, всегда много свободных мест, так же можно поставить автомобиль рядом вдоль дороги.
Подойдет под магазин, офис, салон красоты, пункт выдачи и многие другие услуги.
При аренде полностью сверх аренды оплата всех коммунальных платежей (в зимний период 8-11 тыс). Залог 100%.
Показ в любое время по предварительной договоренности. По всем вопросам звоните/ пишите, ответим на все, что вас заинтересовало.
Ключевые слова для поиска: снять помещение в Нижнем Новгороде, арендовать помещение в Нижнем Новгороде, помещение в Нижней части города, помещение в Канавинском районе, помещение под офис, мастерскую, магазин, студию, салон красоты, пункт выдачи, снять, арендовать помещение рядом с Железнодорожным вокзалом, снять, арендовать помещение рядом с ЦУМом, снять, арендовать помещение рядом с Республикой, снять, арендовать помещение рядом с Мебельным базаром, снять, арендовать помещение около станции метро Московская, снять, арендовать помещение в районе с метро, снять, арендовать помещение рядом с метро, снять, арендовать помещение с отдельным входом.
Телефоны продавца
Похожие предложения
67 025 руб./мес.
652 руб./м²
Нижний Новгород, Канавинский район
ул. Мануфактурная, д. 14
102,8 м²
офисное
Позвонить
68 000 руб./мес.
739 руб./м²
Нижний Новгород, Канавинский район
ш. Московское, д. 306
92 м²
офисное
торговое
Позвонить
торговое

















