№ 2953635
Аренда помещения на ул. Торфяная, д. 33
Сормовский район, Нижний Новгород
117 600 руб./мес.
Район:
Сормовский
Адрес:
ул. Торфяная, д. 33
Площадь:
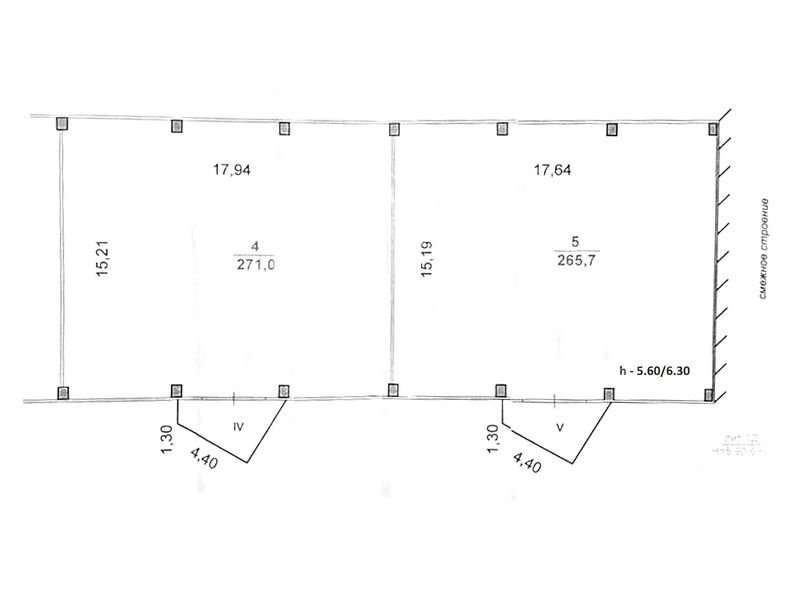
196 м²
Объект:
помещение в нежилом здании
Назначение:
складское
Аренда теплого, кирпичного, отапливаемого складского помещения общей площадью 196м2, 1-й этаж, без рампы. нулевой уровень, подьезд газели и фуры. Ворота большие, но газель не въедет на склад, только в тамбур перед складом. Высота потолка 4,5 метра. Территория охраняется, круглосуточный доступ. Есть офисы от 15 кв.м. рядом со складом. Стоимость аренды 600р/кв.м , отдельно оплачиваются электроэнергия, вывоз мусора. Договор с юр. лицом.
Татьяна Телегина т
Центр Коммерческой Недвижимости
Телефоны продавца


