№ 2971762
Аренда помещения на Вторчермета ул., д.119
Канавинский район, Нижний Новгород
146 720 руб./мес.
Район:
Канавинский
Адрес:
Вторчермета ул., д.119
Площадь:
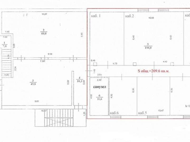
209,6 м²
Назначение:
офисное
Аренда офиса. Нижний Новгород. Канавинский район. Улица Вторчермета. Офис общей площадью 209.6 кв.м. Расположен на 3-ем этаже административного здания. По планировке это отдельный блок со своим санузлом. Состоит из шести кабинетов различной площади от 15 до 51 кв.м. В офисе выполнен хороший ремонт. На полу плитка, подвесной потолок, светодиодные светильники. Вход в здание с красной линии. Возможно разместить рекламу на фасаде здания. Есть парковка для сотрудников. Сдается от юридического лица. УСН. НДС 5%. Дополнительно оплачиваются: электрическая энергия, вода, интернет, уборка. Провайдер интернет Мира-Макс. В шаговой доступности расположена остановка общественного транспорта.
Бунаков Алексей т
Центр Коммерческой Недвижимости
Телефоны продавца





























