Сдаётся в аренду уникальное здание в самом сердце Нижнего Новгорода – Главный дом усадьбы М.Н. Щелокова!
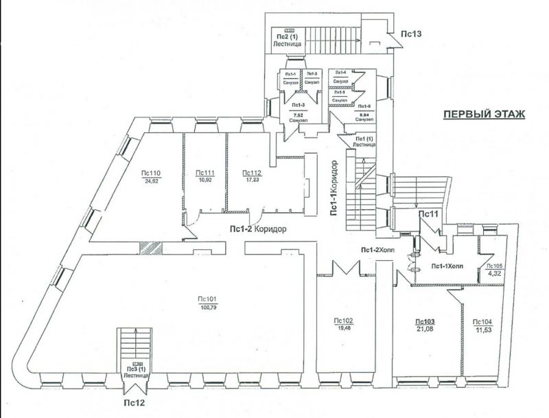
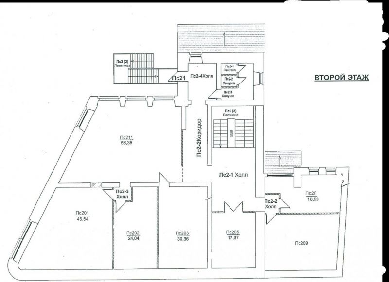
Учитывая его расположение в самом «сердце» города (рядом с Нижегородским Кремлем и Большой Покровской) и исторический статус, здание площадью 845,2 кв. м может быть адаптировано под несколько статусных сценариев:
- Представительский офис или штаб-квартира
Это наиболее логичный вариант, так как здание уже оснащено необходимой инфраструктурой:
- Безопасность: Есть КПП, система контроля доступа (СКУД) и видеонаблюдение.
- IT-готовность: Наличие отдельной серверной и системы кабельной структуры (СКС).
- Комфорт: Собственная парковка со шлагбаумом в центре города — огромный плюс для руководства и ключевых клиентов.
- Планировка: Три отдельных входа позволяют разделить потоки (например, клиентская зона, офисная часть и зона руководства).
- Бутик-отель или премиальные апартаменты
Исторический фасад и интерьеры с лепниной и коваными лестницами создают атмосферу «старого Нижнего», которую ищут туристы высокого чека.
- Здание имеет три этажа (включая подвал).
- Близость к основным достопримечательностям обеспечит стабильный спрос.
- Гастрономический проект (Ресторан / Арт-пространство)
- Высокий трафик: Расположение гарантирует постоянный поток пешеходов.
- Технические возможности: Электрическая мощность в 60 кВт достаточна для кухни и профессионального оборудования.
- Адаптивность: Арендодатель готов обсуждать вариант, при котором арендатор сам выполняет дизайн-проект под свою технологию.
- Частная клиника или образовательный центр
Планировка с множеством отдельных помещений (кабинетная система) отлично подойдет под медицинские услуги или элитную школу/языковой центр.
Варианты сотрудничества:
- Аренда в текущем состоянии после предыдущего арендатора.
- Выполнение отделки «под ключ» силами собственника под ваш брендбук.
- Предоставление арендных каникул при самостоятельном выполнении дизайн-проекта.
Цена: от 1300 руб. за кв. метр. Звоните, чтобы записаться на просмотр этого знакового объекта
Контактные данные: 8-951-903-31-75 — Пылина Марина Юрьевна
e-mail: pmu63@mail.ru
















