Офисный центр находится в Советском районе, в стоимость арендной платы включены коммунальные услуги.
Показать полное описание
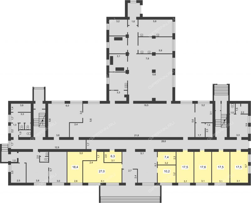
Офисный центр Высоковский проезд, 22 в Нижнем Новгороде
Советский район, Нижний Новгород
600 - 650 руб./м²
Аренда:
600 - 650 руб./м²
Район:
Советский район
Адрес:
Высоковский проезд, 22
Год постройки:
1965
Площадь здания:
2 243 м²
Площадь офисных помещений:
1 960 м²
Минимальная арендуемая площадь:
от 17 м²
Свободные площади:
есть
О офисном центре «Высоковский проезд, 22»
Дополнительная информация:
Адрес:
Высоковский проезд, 22
Этажность:
4
Парковка:
На улице охраняемая (30 м/мест)
Охрана:
Есть
Круглосуточный доступ:
Есть
Интернет:
Дом.ру, МегаФон, ВымпелКом, МТС
Телефон:
Дом.ру, МегаФон, ВымпелКом, МТС
Услуги:
Клининговые услуги, кафе
Состав арендаторов
Общественные организации (3)
Автоэкспертиза (2)
Спортивные организации (2)
Спортивные товары (2)
Федеральные службы (2)
Другое (2)
Контакты арендодателя



