№ 2972162
Продажа дома (деревня Афонино, Родниковая улица, 26/2)
Кстовский район, Нижегородская область
7 500 000 руб.
в ипотеку от 86 822 руб./мес.
Район:
Кстовский район
Адрес:
деревня Афонино, Родниковая улица, 26/2
Объект:
дом
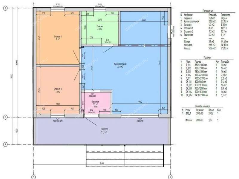
Площадь:
72 / 62 / 10
Площадь участка:
5 соток
Количество этажей:
1
Материал стен:
панель
‼️ПРОДАЁТСЯ новый уютный одноэтажный дом 60 м² в семейную ипотеку — идеальный вариант для семьи с детьми.
❤️Планировка: 2 отдельные спальни, светлая гостиная, санузел в доме.
❤️Участок 5 соток — достаточно места для детской площадки, мангальной зоны или небольшого огорода.
❤️Локация максимально удобна для семей: рядом администрация, детский сад, школа, магазин «Магнит» и аптека, остановка городского автобуса — всего в 4 минутах пешком от дома, легко добраться до центра без машины.
Условия покупки:
– Цена дома: 1,5 млн ₽❤️❤️❤️ (первоначальный взнос)
– Ипотека от Банка Дом.рф:
6 млн ₽ под 6,2% годовых по семейной ипотеке,
срок 30 лет, ежемесячный платеж 36780 рублей,
переплата 7020000 рублей зависит от срока погашения.
Помогу с одобрением, все расскажу!
‼️Свой дом за 36 000 руб/месяц
Интернет
есть
Отопление
есть
Электричество
есть
Водопровод
есть
Канализация
есть
Туалет
в доме
Ипотека
да
Похожие предложения
Кстовский район, дер. Фроловское
КП «Фроловский», ул. Восточная, д. 6
67,7 м² / 1 сотка
комб.
Позвонить
Ипотечный калькулятор







