№ 2965546
Продажа дома на деревня Копосово, ул. Лизы Чайкиной, д. 31
Сормовский район, Нижний Новгород
13 500 000 руб.
в ипотеку от 156 279 руб./мес.
Район:
Сормовский район
Адрес:
деревня Копосово, ул. Лизы Чайкиной, д. 31
Объект:
дом
Площадь:
217 / 150 / 49
Площадь участка:
5 соток
Количество этажей:
3
Материал стен:
комб.
🏡 Продается частный дом, строили для себя из качественных материалов по всем правилам и СНиПам.
🛣️ Отличная транспортная развязка, остановка общественного транспорта в 3 х минутах ходьбы, рядом вся инфо структура, школы, садики, больницы, фитнес клубы, торговые центры, магазины.
Рядом улицы: Старая Канава, Академика Вавилова, Алебастровая, Заливная, Хальзовская, Вахтангова, проспект Союзный, Баренца, Кима.
До центра Сормова 5 минут на машине.
🏠 Участок 5 соток.
Дом имеет площадь 320 м2
Зарегистрировано 2 этажа 217 м2 без 3 - его мансардного этажа.
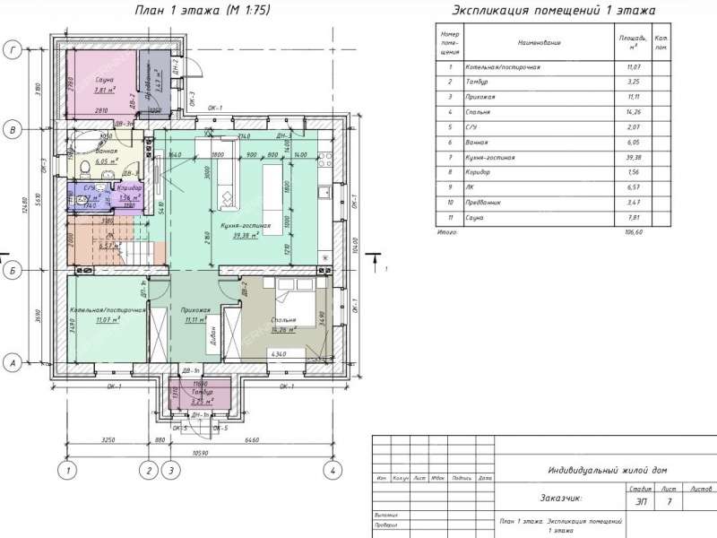
🏠 Планировка дома
✅ Первый этаж:
Тамбур - 3,47 м2
Котельная - постирочная - 11,07 м2
Прихожая - 11,11 м2
Гостевая спальня - 14,26 м2
Кухня - гостиная - 39,38 м2
С/у - 2, 07 м2
Ванная - 6,05 м2
Сауна - 11,28 м2
✅ Второй этаж:
Ванная - 10,05 м2
Кабинет - 8,76 м2
Спальня 1 - 20,56 м2
Спальня 2 - 18,28 м2
Спальня 3 - 18,28 м2
Хол - 8,97 м2
✅ Мансардный этаж свободной планировке.
🏗️ Фундамент монолитная плита 450 мм, стены газосиликатный блок 400 мм, облицовка дома керамический кирпич,
между этажей армопояс и жб плиты, лестницы между 1 - 2 и 3 тим этажом бетонные, перегородки в доме из силикатного кирпича, мягкая кровля, утепление кровли 250 мм, мансардные качественные окна на мансардном этаже.
Дом без отделки!
Посмотреть дом снаружи можете сами по адресу из объявления, могу скинуть дополнительные фото, есть фото всех работ по постройке дома от расчистка участка до крыши.
☎️ Прошу писать и звонить реальным покупателям!
Агентов прошу беспокоить только с потенциальными клиентами!
Электричество
есть
Водопровод
есть
Газ
есть
Канализация
есть
Туалет
в доме
Ипотека
да
Кирилл
Телефоны продавца
Похожие предложения
Нижний Новгород, Сормовский район
деревня Копосово, ул. Ровная, д. 46
248,3 м² / 10 соток
кирпич
Позвонить
Нижний Новгород, Сормовский район, Высоково
ул. Беринга, д. 14/8
111 м² / 3,7 сотки
2 эт., блоки
Позвонить
Нижний Новгород, Сормовский район
деревня Копосово, ул. Новосельская, д. 14
199 м² / 4 сотки
3 эт., дерево
Позвонить
Ипотечный калькулятор












