№ 2830903
Продажа дома (деревня Крутая, КП Деревня Крутая, Озёрная улица)
Кстовский район, Нижегородская область
6 400 000 руб.
в ипотеку от 74 088 руб./мес.
Район:
Кстовский район
Адрес:
деревня Крутая, КП Деревня Крутая, Озёрная улица
Объект:
дом
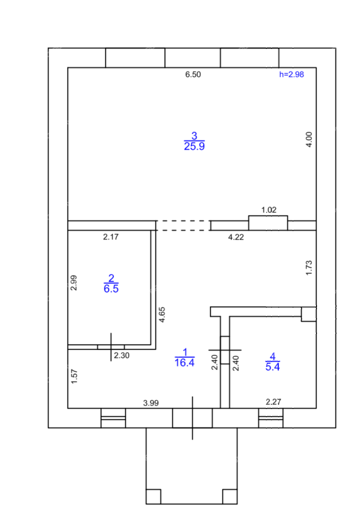
Площадь:
116 / 80 / 21
Площадь участка:
5 соток
Количество этажей:
2
Материал стен:
кирпич
Продаю загородный двухэтажный кирпичный дом общей площадью 116 кв.м. с земельным участком в 5 соток.
Расположенный по адресу: Нижегородская область, Кстовский район, деревня Крутая, улица Озёрная.
О доме:
Стены из керамического кирпичного блока.
Перекрытия межэтажные: монолитные бетонные плиты.
Кровля: гибкая черепица.
Фундамент: железобетонная плита 300 мм.
Отмостка вокруг дома.
Пластиковые окна с ламинацией под дерево.
Коммуникации: газ, электричество разводка произведена, вода (скважина) заведены в дом.
Канализация септик.
Дом без внутренней отделки. Зона для барбекю. Парковка.
Цена дома с участком: 6 400 000 рублей. Цена действует только при покупке до конца месяца!
Стадия строительства
строится
Отопление
есть
Электричество
есть
Водопровод
есть
Газ
есть
Канализация
есть
Туалет
в доме
Ипотека
да
Похожие предложения
Ипотечный калькулятор



