№ 2970033
Продажа дома (деревня Зелецино, школьная)
Кстовский район, Нижегородская область
6 450 000 руб.
в ипотеку от 74 667 руб./мес.
Район:
Кстовский район
Адрес:
деревня Зелецино, школьная
Объект:
дом
Площадь:
99,3 / / 23,5
Площадь участка:
5 соток
Количество этажей:
Материал стен:
кирпич
Продаю новый дом в дер.Зелецино Кстовского района
Отличное предложение по привлекательной цене. Дом построен в 2024 году, выполнен из самого современного экологического и теплого материала - керамических блоков. Все коммуникации заведены в дом. Газ, электричество, вода - центральные, канализация- септик с переливом, а это значит, что не требует особо обслуживания.
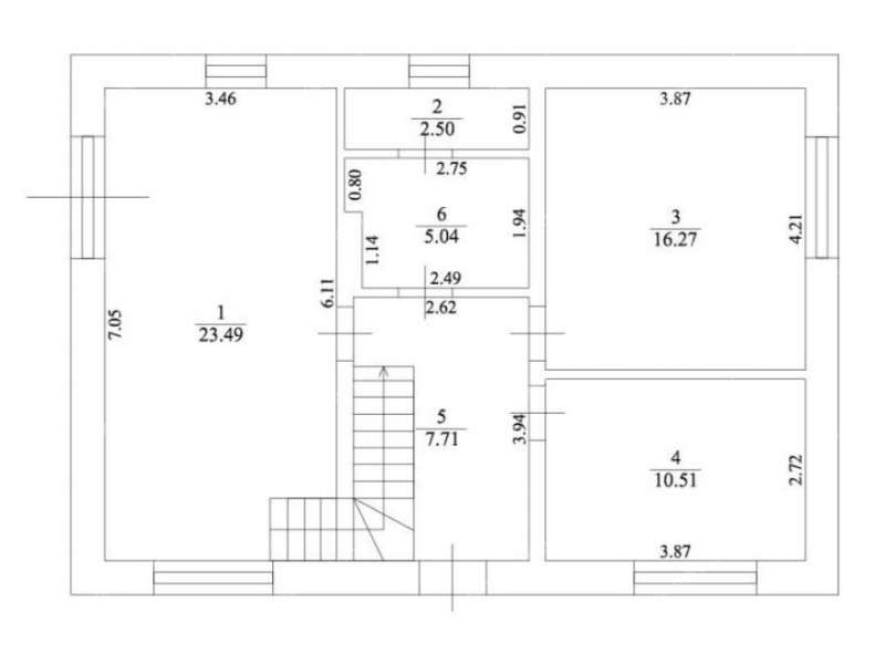
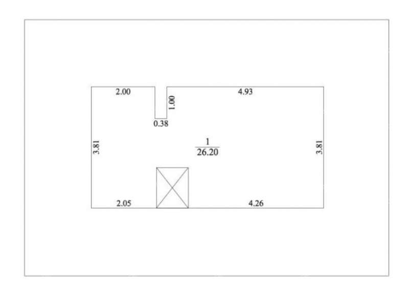
Площадь первого этажа составляет 74 м.кв: 2 спальни и большая кухня-гостинная 23,5 кв. метра с выходом на участок, санузел и котельная, второй этаж мансардный 26,2 м.кв с высотой потолка 2 метра, где легко оборудовать еще одну комнату или зону отдыха. Высота потолка первого этажа 2,85 метра.
Участок ровный 5 сот + есть придомовая территория. Новая асфальтированная дорога до дома.
Стоимость дома указана в черновом варианте. По желанию можно дозаказать предчистовую отделку ( разводка теплого пола и электрики по всему дому, механизированная стяжка, штукатурка стен, установка подрозетников), останется только выполнить косметический ремонт на свой вкус и цвет.
Удачное место расположение. 20 мин до Нижнего Новгорода и мин 10 до Кстово. Также ходят рейсовые автобусы.
Подходит под семейную и IT ипотеку, оказываем помощь в одобрении.
Звоните, договоримся о показе.
Телефоны продавца
Похожие предложения
Кстовский район, дер. Фроловское
КП «Фроловский», ул. Восточная, д. 6
67,7 м² / 1 сотка
комб.
Позвонить
Ипотечный калькулятор









