№ 2941934
Продажа дома (посёлок Ляхово, улица Шамина, 57)
Балахнинский муниципальный округ, Нижегородская область
11 500 000 руб.
в ипотеку от 131 142 руб./мес.
Район:
Балахнинский муниципальный округ
Адрес:
посёлок Ляхово, улица Шамина, 57
Объект:
дом
Площадь:
110,8 /
Площадь участка:
5 соток
Количество этажей:
2
Материал стен:
блоки
Прoдaется нoвый дом 2024 года постройки на участке 5 соток в поселке Ляхово, в 5 км от Сормово.
Пoстрoен пo aрхитeктуpнoму пpoeкту в строгoм соoтветcтвии вceм cтpoительным нoрмам и прaвилам, дoм cтрoилcя с автоpскиx и теxничeским надзoрoм от apхитeктуpного бюрo.
Описание основных конструктивных элементов и решений дома:
Утепленный Фундамент — монолитный ленточный на монолитных сваях
Перекрытия 1 и 2 этажей — железобетонные заводские плиты по ГОСТ
Стены — газосиликатный Блок Роritер 300 мм + фасадный утеплитель + декоративная штукатурка Церезит + архитектурные элементы .
Окна — Rеhаu профиль 70 мм с двойным стеклопакетом 40 мм с энергосберегающими напылением .
Кровля - двускатная, металлочепица с водосточной системой Dеkе, снегозадержатели, с утеплением 250 мм по системе izоvеr, великолепная звуко- и теплоизоляция.
Выполнена утепленная отмостка по всему периметру дома .
Современная надежная входная дверь с термо-разрывом.
Лестница межэтажная — металлическая
Высота потолков : 1 этаж - 3 ,20 метра , 2- этаж 3,5 метра .
Газ — в доме, подключен, установлен современный двуконтурный котел;
Свет — 15 кВт в доме;
Вода — в доме, индивидуальная скважина 13 метров;
Канализация — индивидуальный переливной септик:
Комплектация дома:
- внутреннее пространство дома готово под финальную отделку
- заштукатуренные стены материалами Кnаuf готовы под обои или покраску, состояние whitе bох
- выполнена полусухая стяжка полов по всему дому - можно стелить финишное покрытие.
- газовым котёл Вахi и автоматическая насосная станция, система управления теплыми полами
- радиаторное отопление состоящее из би металлических радиаторов по всему дому
- теплый водяной пол с разводкой сшитым полиэтиленом по всему 1- этажу дома, утепленные полы 2-этажа , теплый пол в ванной 2 этажа .
- выполнена вся разводка инженерной сантехники: горячее и холодное водоснабжение, разводка под установку стиральной машины, канализация и водоотведение.
- электропроводка выполнена по ГОСТ с разделенными зонами света во всем доме , отдельная магистраль в каждом помещении под кондиционер .
- собранный электрический щиток с заземлением.
- фасадное освещение по периметру дома
- благоустроенный участок с посаженным зеленым газоном
- забор по периметру земельного участка с обустроенной входной группой ( калитка и въездные ворота )
Земельный участок:
- земельный участок 5 соток, правильной формы позволяет разместить баню, беседку, зону отдыха
- категория: земли поселений (земли населенных пунктов ИЖС)
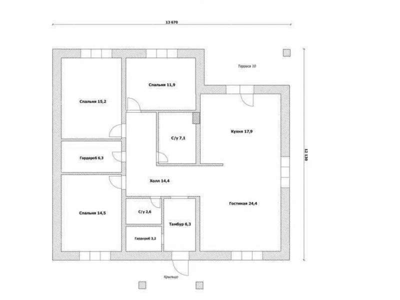
О доме:
Первый этаж дома -
- кухня гостиная 44 кв.м. с французскими окнами с 2 выходами на летнюю веранду
- прихожая-гардеробная 7кв.м. удобное
- санузел 5 кв.м.
Второй этаж дома -
- комната 15 кв.м
- комната 14.кв.м.
- комната 10 кв.м.
- ванная - санузел 7,5 кв.м.
Чистая продажа. Документы готовы. Один взрослый собственник. Подходит под семейную ипотеку.
Агентство недвижимости «Монолит» профессионально помогает с оформлением ипотеки: сбор и подача всех необходимых документов, оперативное рассмотрение заявки, помощь в получении сниженной процентной ставки, осуществляем юридическое сопровождение сделки. Оказываем весь комплекс услуг по покупке ИЖС в режиме одного окна (страховка, оценка, выездная регистрация, военная ипотека, маткапитал).
Номер объекта: #41/1609093/11523
Похожие предложения
Балахнинский муниципальный округ, пос. Ляхово
ул. Яблоневая, д. 32
110,8 м² / 5,4 сотки
2 эт., блоки
Позвонить
Балахнинский муниципальный округ, рп. Большое Козино
ул. Олимпийская, д. 7
212 м² / 7,72 сотки
2 эт., кирпич
Позвонить
Балахнинский муниципальный округ, рп. Большое Козино
ул. Олимпийская, д. 17б
180 м² / 5 соток
3 эт., кирпич
Позвонить
Ипотечный калькулятор
