№ 2951480
Продажа дома (посёлок Селекционной станции, 9 изумрудная 22, 22)
Кстовский район, Нижегородская область
10 300 000 руб.
в ипотеку от 117 458 руб./мес.
Район:
Кстовский район
Адрес:
посёлок Селекционной станции, 9 изумрудная 22, 22
Объект:
дом
Площадь:
132,6 / 45,92 / 26,63
Площадь участка:
8 соток
Материал стен:
комб.
Продаются готовые дома в КП Селекция.
Подходит под ипотеку. Возможна рассрочка от застройщика и взаимозачет Вашей недвижимости.
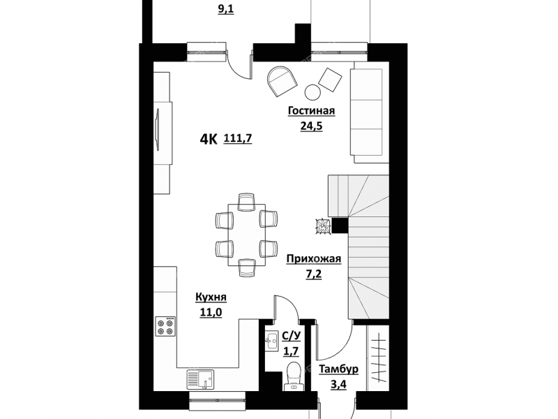
Дом 132м2 с отличной планировкой.
1 этаж: хорошая прихожая, санузел и просто шикарная кухня. Теплый пол по всему этажу.
2 этаж: 3 просторные комнаты, большой санузел и гардеробная.
Дома продаются с заведенными центральными коммуникациями (газ, вода, индивидуальное отопление), фабричной деревянной лестницей, и предчистовым ремонтом (штукатурка, установлена сантехника, счетчики, котел и радиаторы отопления).
Коттеджный поселок расположен в 5 минутах езды от развитой инфраструктуры: магазины, аптека, почта, школа и детский садик. 10 минут езды до Меги и 15 минут до Нижнего Новгорода. Удобное расположение позволяет объезжать пробки (выезды на Гагарина, Ларина или Казанское шоссе).
Телефоны продавца
Похожие предложения
Кстовский район, Коттеджный посёлок Фрегат, Коттеджный посёлок Фрегат
Каспийская
90,5 м² / 2 сотки
2 эт., блоки
Позвонить
Кстовский район, Коттеджный посёлок Фрегат, Коттеджный посёлок Фрегат
Донская
90,5 м² / 2 сотки
2 эт., блоки
Позвонить
Ипотечный калькулятор





