VEREN PLACE ОДЕССКАЯ Видовые квартиры!
№ 2955009 К списку
Продажа дома (Престижный мкр, Тихая ул., 18)
Кстовский район, Нижегородская область
7 700 000 руб. в ипотеку от 87 808 руб./мес.
Район:
Кстовский район
Адрес:
Престижный мкр, Тихая ул., 18
Объект:
дом
Площадь:
141 / 42
Площадь участка:
10 соток
Количество этажей:
1
Материал стен:
кирпич

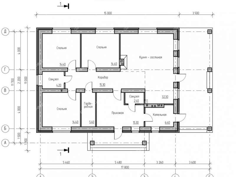
Арт. 103958833 <br> Продается одноэтажный кирпичный дом в г. Кстово, мкр. Престижный! Дом готов, не строительство! <br> Адрес: ул. Тихая, 18 <br> Общая площадь: 141,5 кв.м <br> Земельный участок: 10 соток <br> Особенности дома: <br>- Фундамент: буро-наливной, глубина 800 мм, ширина 500 мм, сваи через каждые 2000 мм по периметру, глубина 2000 мм. <br>- Стены: газосиликатный блок (625*400*250, марка Poritep D400), внутренние межкомнатные стены (625*150*250). <br>- Облицовка: кирпич марки Staford, производитель Керма. <br>- Кровля: металл толщиной 0.5 мм с отливами, снегозадержателями и комплектующими от фирмы Гранд Лайн. <br> Коммуникации: <br>- Переливной септик из двух бетонных колец диаметром 2 м (продукция Книле). <br>- Электричество: 15 кВт, подведено бронекабелем под землей. <br>- Вода: скважина глубиной 30 метров. <br>- В комплекте: газовый котел Baxi. <br>Этот дом — идеальное место для комфортной жизни! Не упустите шанс стать владельцем этого замечательного объекта. Звоните для получения дополнительной информации и организации просмотра!
Телефон
нет
Интернет
нет
Отопление
есть
Электричество
есть
Водопровод
есть
Газ
есть
Канализация
есть
Наличие бани/сауны
нет
Торг уместен
да
Ипотека
да
Похожие предложения
09.12
6 999 999 руб.
55 556 руб./м²
в ипотеку от 79 826 руб./мес.
Кстовский район, г. Кстово
ул. Октябрьская, д. 20
126 м² / 10 соток 2 эт., кирпич
Позвонить
6 550 000 руб.
65 500 руб./м²
в ипотеку от 74 694 руб./мес.
Кстовский район, г. Кстово
Коновалова
100 м² / 3 сотки 2 эт., кирпич
Позвонить
6 990 000 руб.
131 887 руб./м²
в ипотеку от 79 712 руб./мес.
Кстовский район, дер. Фроловское
39
53 м² / 16 соток 1 эт., кирпич
Позвонить
8 000 000 руб.
64 103 руб./м²
в ипотеку от 91 230 руб./мес.
Кстовский район, КП Бавария-Парк
Солнечная улица
124,8 м² / 11,8 сотки 2 эт., кирпич
Позвонить