№ 2963663
Продажа дома (село Елховка)
Кстовский район, Нижегородская область
7 800 000 руб.
в ипотеку от 90 295 руб./мес.
Район:
Кстовский район
Адрес:
село Елховка
Объект:
дом
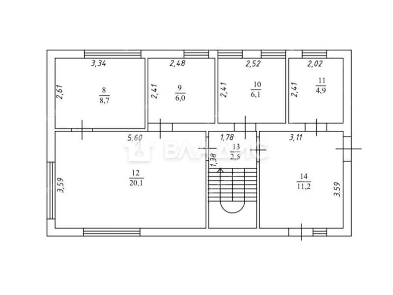
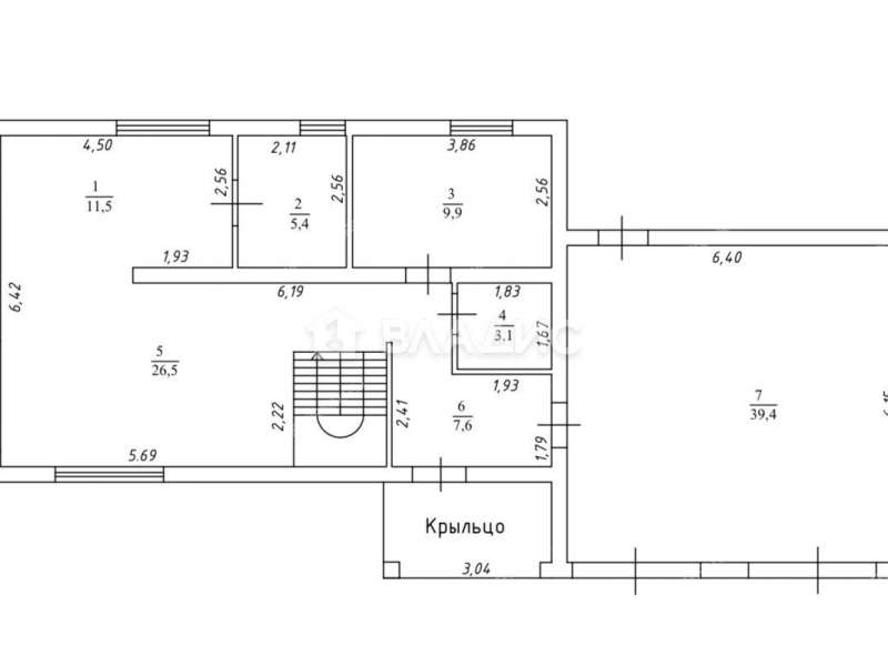
Площадь:
120 / 38,8 / 36,2
Площадь участка:
8 соток
Количество этажей:
2
Материал стен:
кирпич
Код объекта: 1989885.Продается новый дом 120 кв.м. + 8 сот.земли (село Елховка). 15 минут езды от Нижнего Новгорода по Арзамасской трассе.Продажа от юридического лица. Подходит под семейную ипотеку.1 этаж: кухня – гостиная + котельная + санузел. 2 этаж: 3 комнаты + санузел.Материал стен: газосиликатные блоки 300 + утеплитель 100 + облицовочный кирпич.Крыша — металлочерепица.Фундамент — ленточно-свайный (бетонные сваи 2.20 через каждые 1.5м, диаметр 300 + бетонная площадка 20см).Коммуникации: проведено отопление (Газ), водоснабжение (скважина 43 метра), действующая канализация (септик), разводка электричества по всему дому, котельная полностью оборудована, тёплые полы (первый этаж).Год постройки — 2024г.Звоните, отвечу более подробно на все интересующие вопросы, а также организую просмотр объекта в удобное для Вас время)
Телефон
нет
Интернет
нет
Отопление
есть
Электричество
есть
Водопровод
есть
Газ
есть
Канализация
есть
Наличие бани/сауны
нет
Ипотека
да
Телефоны продавца
Похожие предложения
Ипотечный калькулятор


















