№ 2941544
Продажа дома (село Трофимово, площадь Советов, 10)
Лысковский муниципальный округ, Нижегородская область
7 450 000 руб.
в ипотеку от 90 747 руб./мес.
Район:
Лысковский муниципальный округ
Адрес:
село Трофимово, площадь Советов, 10
Объект:
дом
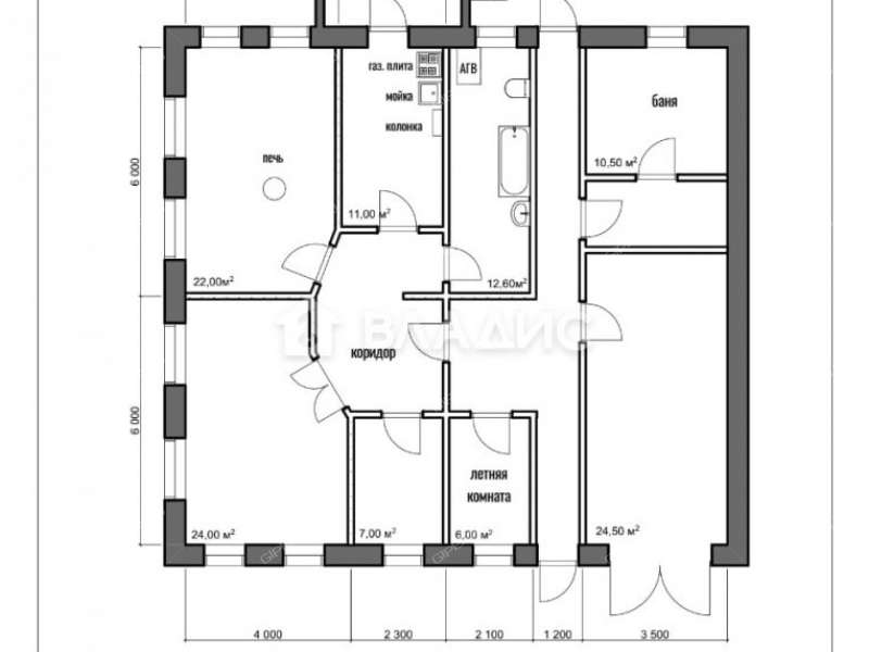
Площадь:
80 / 45 / 16
Площадь участка:
15 соток
Количество этажей:
1
Материал стен:
кирпич
Продается жилой дом. Площадью 80м2. Находящийся по адресу: Нижегородская обл., Лысковский муниципальный р-н, с. Трофимово. Село находится в 90 км. от Нижнего Новгорода. Дом находится на участке, площадью 15 соток, участок ровный, квадратный. Дом удачно расположен, соседи только с одной стороны. Границы участка отмежеваны. В доме 3 комнаты, кухня-площадью 16м2 в цокольном этаже, там же сан. узел . во всем доме теплые полы. Все удобства, газовое отопление, центральная вода(из общей скважина), септик. Материал стен- брус, обложенный кирпичем. Дом окнами на восток, солнце с утра до вечера. Во дворе дома гараж, баня. На участке есть капитальная утепленная постройка, 2020 года, в которой находится погреб, кладовая, мангальная. Площадь постройки 35 м2 (5х7 м). Летом можно использовать как гостевой дом. Есть сарай, площадью 40 м2 (5х8 м). Его можно использовать как сеновал и(или) как гараж для трактора. В доме есть курятник с газовым отоплением. Кур могут оставить по желанию. На участке имеется еще один погреб и парник, площадью 24 м2. Участок очень ухоженный. На участке имеются посадки: смородина, малина, слива, яблоня, клубника. Рядом остановка городского транспорта, магазина, рядом детский сад. До реки Волга – 10 минут на машине, есть городской пляж.
Цена 7 450 000 рублей. Чистая продажа. Реальному покупателю - торг.
Стадия строительства
сдан в эксплуатацию
Отопление
есть
Электричество
есть
Водопровод
есть
Газ
есть
Канализация
есть
Наличие бани/сауны
есть
Гараж
есть
Туалет
в доме
Торг уместен
да
Ипотека
да
Телефоны продавца
Ипотечный калькулятор





















