№ 2972639
Продажа дома (Серебряные ключи (деревня Бугры) тер. ТСН, -, 95)
Дальнеконстантиновский район, Нижегородская область
4 900 000 руб.
в ипотеку от 56 724 руб./мес.
Район:
Дальнеконстантиновский район
Адрес:
Серебряные ключи (деревня Бугры) тер. ТСН, -, 95
Объект:
дом
Площадь:
156 /
Площадь участка:
20 соток
Количество этажей:
2
Материал стен:
блоки
Номер объекта: 1843043. Вашему вниманию предлагается дом на стадии строительства, в 20 км от города в живописном Дальнеконстантиновском районе, в охраняемом коттеджном поселке с шлагбаумом. Этот дом — идеальный вариант для тех, кто мечтает о собственном уютном уголке, окруженном природой и с развитой инфраструктурой!
Основные характеристики:
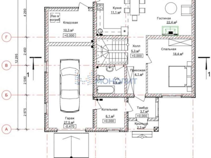
-Площадь дома: 156 м²
-Площадь участка: 20 соток
-Материал стен: керамзитно-бетонный блок (300 мм), влагостойкий
-Фундамент: ж/б монолит глубиной 3 метра
-Перекрытие деревянное, обработано влагозащитным составом
-Гидроизоляция по фундаменту
-Электричество: 15 кВт
-Вода: с общего водоснабжения (бесплатно)
-Газ: на границе участка, разрешение на подключение оплачено
-Дополнительно: гараж, погреб, баня и хозблок на территории
Преимущества:
Дом строился в 2023 году по индивидуальному проекту от ВЛМ-Строй, все акты в наличии.
Строительство выполнено с учетом розы ветров и солнечного движения — в гостиной вы будете наслаждаться солнечными лучами утром и вечером на противоположной стороне. По запросу высылаю фотографии этапов строительства, каждый этап контролировался заказчиком. Полностью готовый проект передается новым владельцам для завершения строительства.
Рядом находятся магазин, школа и детский сад, что делает жизнь здесь комфортной для семей с детьми.
Поселок охраняемый, что обеспечивает безопасность и спокойствие.
Не упустите возможность завершить строительство своего идеального дома в живописном месте! Звоните для получения дополнительной информации и организации просмотра в любое время. Ваш новый дом ждет вас!
Агентство недвижимости «Монолит» профессионально помогает с оформлением ипотеки: сбор и подача всех необходимых документов, оперативное рассмотрение заявки, помощь в получении сниженной процентной ставки, осуществляем юридическое сопровождение сделки. Оказываем весь комплекс услуг по покупке ИЖС в режиме одного окна (страховка, оценка, выездная регистрация, военная ипотека, маткапитал).
Махова Анастасия
Монолит Истейт.
Телефоны продавца
Похожие предложения
Обьявление неактуально
Дальнеконстантиновский район, дер. Бугры
264
200 м² / 15 соток
2 эт., дерево
Позвонить
Ипотечный калькулятор
-ter--tsn-0.jpeg)
-ter--tsn-1.jpeg)
-ter--tsn-2.jpeg)
-ter--tsn-3.jpeg)
-ter--tsn-4.jpeg)
-ter--tsn-5.jpeg)
-ter--tsn-6.jpeg)
-ter--tsn-7.jpeg)
-ter--tsn-8.jpeg)
-ter--tsn-9.jpeg)
-ter--tsn-10.jpeg)
-ter--tsn-11.jpeg)
-ter--tsn-12.jpeg)