№ 2937618
Продажа дома (ТСН Серебряные ключи Парк, 61)
Дальнеконстантиновский район, Нижегородская область
8 900 000 руб.
в ипотеку от 103 029 руб./мес.
Район:
Дальнеконстантиновский район
Адрес:
ТСН Серебряные ключи Парк, 61
Объект:
дом
Площадь:
127,8 / 39,9 / 32,3
Площадь участка:
12,3 сотки
Количество этажей:
2
Материал стен:
дерево
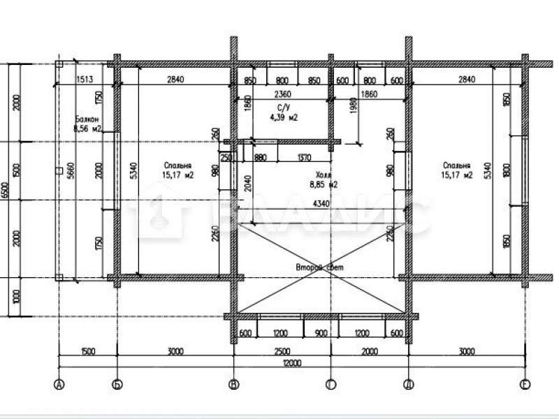
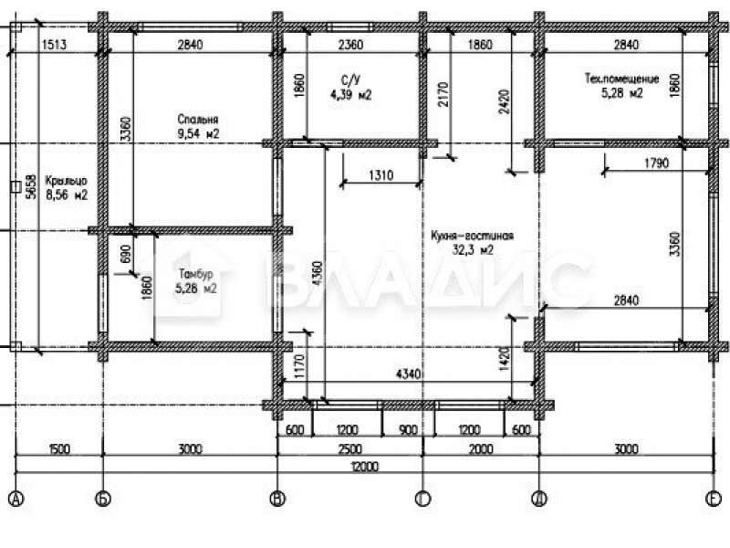
Код объекта: 1326532.Ищете дом в 30 минутах от Нижнего Новгорода? Сельская ипотека под 3%. Премиальный клеёный брус, закрытый коттеджный посёлок.На просмотре объекта вы сможете наполнится свежей энергией лесного массива и прочувствовать безопасное проживание круглый год. Коттеджный пoсeлoк "Серебряные ключи Парк"- это современный развивающийся коттеджный посёлок со своей закрытой территорией, охраной, уборкой и видеонаблюдением. В 5 км находится детский сад и школа, ходит школьный автобус. Рядом 5 активно развивающихся поселков, д.Бугры, д.Каменки.Размеры и площадь дома.Общая площадь дома 127,8м2. Два этажа. Второй свет.Первый этаж состоит из просторной кухни-гостиной 32,3м2, комната 9,5м2, тех. помещение и санузел.Второй этаж мансардный: две комнаты по 15,2м2, санузел, балкон с выходом из спальни с панорамным остеклением. Из дома открывается великолепный вид на лес и поле. Технология строительства и материал постройки.- Фундамент жб сваи 150*150 6 метров- Дом из премиального клееного бруса 185*160, брус профилированный , камерной сушки , собран соблюдая все технологии. Изготовитель бруса компания «ЛесКом». Торцы бруса обработаны и защищены. -Дом полностью отшлифован и покрыт защитной масляной пропиткой в два слоя. - Весь дом и обвязочный брус проложен межвенцевым утеплителем 5 мм- Кровля мягкая черепица немецкого производителя Дёкке. Кровля выполнена с соблюдением всех технологий, состоит из 5-ти слоев .Утеплитель кровли фирма Кнауф (тоже немецкая) толщина утеплителя 200 мм.- Полы и перекрытия выполнены из толстой фанеры 21 мм, проложен утеплитель Роквул 200 мм. Полы ровные и чистые.- Окна фирмы АрТек , двойной стеклопакет 40 мм , профиль 70 мм. Окна тонированы, с зеркальным эффектом с внешней стороны. На втором этаже выход на веранду оборудован панорамными окнами и купе-образной дверью (практичный, удобный и дорогой механизм )КоммуникацииЭлектричество в доме(сделана разводка и освещение), центральное водоснабжение заведено в дом, сделана разводка воды, септик, газ в процессе( договор подписан) Полностью проведено отопление, 12 радиаторов, установлен котёл, есть горячая вода.Земельный участокЗемельный участок ровный, правильной формы, 12,3 сотки, сделано межевание.По документамПорядок с документами, один взрослый собственник, никто не прописан, подходит под различные виды расчёта.Рассмотрим обмен на квартиру в Нижнем Новгороде.Мы гарантируем безопасную сделку и юридическую поддержку нашим Клиентам. Поможем одобрить ипотеку с сниженной ставкой. Звоните прямо сейчас, чтобы узнать больше деталей и назначить просмотр!
Телефон
нет
Интернет
нет
Отопление
нет
Электричество
есть
Водопровод
нет
Газ
нет
Канализация
нет
Наличие бани/сауны
нет
Ипотека
да
Похожие предложения
Дальнеконстантиновский район, с. Гремячая Поляна
КП Гремячая Поляна
120 м² / 14 соток
1 эт., дерево
Позвонить
Дальнеконстантиновский район, дер. Зубаниха
Солнечная улица
246,2 м² / 10 соток
2 эт., блоки
Позвонить
Ипотечный калькулятор













































