№ 2921662
Продажа коттеджа (деревня Колобово (Редькинский сельсовет)
городской округ Бор, Нижегородская область
5 900 000 руб.
в ипотеку от 67 282 руб./мес.
Район:
городской округ Бор
Адрес:
деревня Колобово (Редькинский сельсовет
Объект:
коттедж
Площадь:
112 /
Площадь участка:
9,3 сотки
Количество этажей:
2
Материал стен:
блоки
Продам коттедж 112 кв.м в д. Колобово. Участок 9.3 сотки.
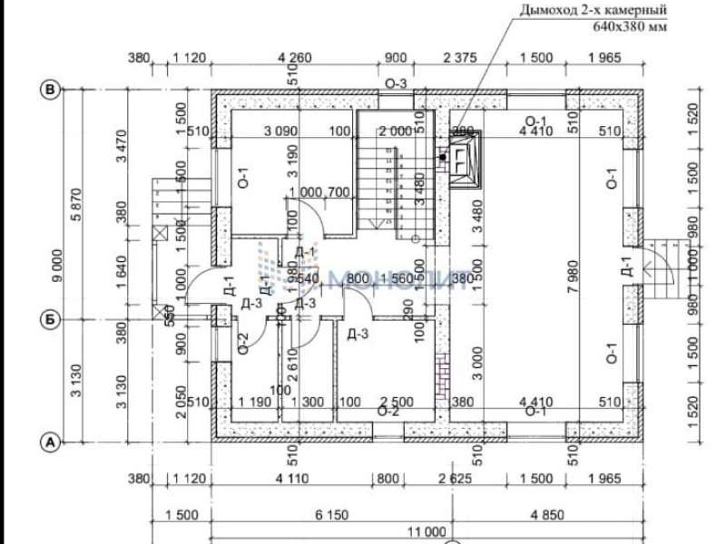
В доме все коммуникации: газ - двухконтурный котел, электричество, вода-скважина, канализация - выгребная яма.
Дом построен из газосиликатного блока, утеплен, оштукатурен. Перекрытия 1 этажа железобетонные плиты, перекрытия 2 этажа деревянное. Фундамент - ленточно-свайный 1,8 метра в глубину. Крыша - металлочерепица. Утеплена. Сделаны водостоки.
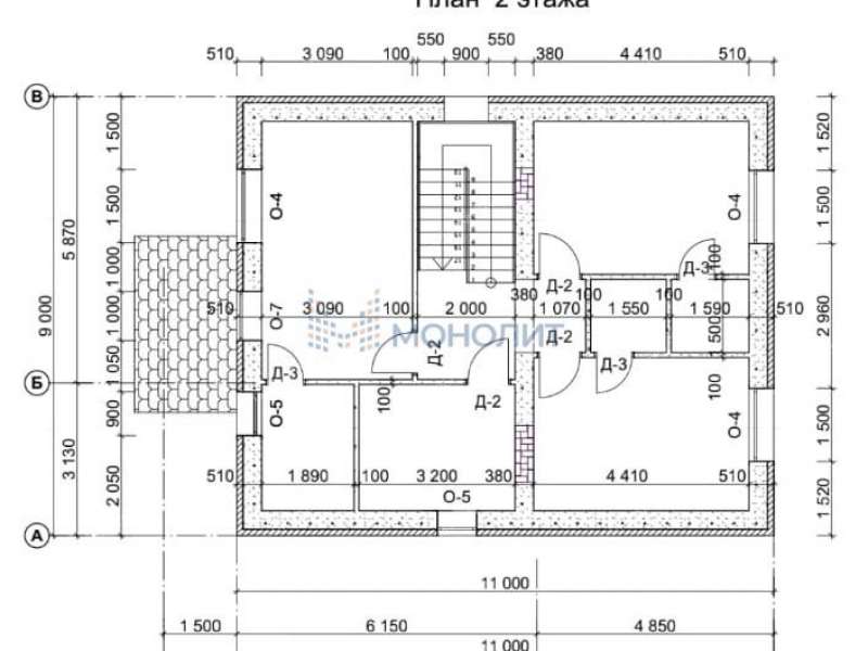
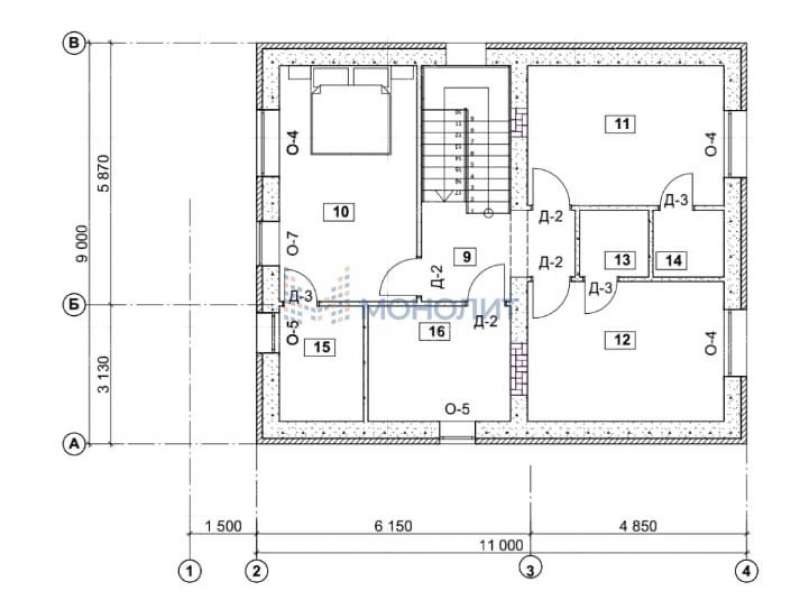
На 1 этаже располагается кухня-гостиная 31 кв.м., комната 12.6 кв.м., с/узел.
На 2 этаже свободная планировка. Внутри сделана предчистовая отделка!
В доме установлены радиаторы. Выполнена базовая разводка электричества. Рядом находится остановка общественного транспорта. До центра г. Бор не более 10 минут. Подходит под все виды расчета: ипотека, с вложением семейного-материнского капитала, жилищные сертификаты!
Если у Вас остались вопросы, буду рада ответить на них.
Просмотр в любое для Вас удобное время по предварительной договоренности.
При продаже предоставляем полный пакет документов, юридическое сопровождение сделки.
Номер объекта: #41/538066/18305
Елена Михальцова
Содружество
Телефоны продавца
Похожие предложения
городской округ Бор, деревня Куземино (Редькинский сельсовет
112 м² / 4 сотки
2 эт., блоки
Позвонить
городской округ Бор, деревня Каликино (Кантауровский сельсовет
Абрикосовая улица
107 м² / 12 соток
2 эт., кирпич
Позвонить
городской округ Бор, село Селищи (Ямновский сельсовет
Малая Урицкая улица
150 м² / 15 соток
2 эт., кирпич
Позвонить
городской округ Бор, деревня Владимирово (Редькинский сельсовет
-
162 м² / 6,3 сотки
2 эт., блоки
Позвонить
Ипотечный калькулятор









