№ 2881978
Продажа дома (деревня Черемисское, 168)
Кстовский район, Нижегородская область
27 000 000 руб.
в ипотеку от 312 559 руб./мес.
Район:
Кстовский район
Адрес:
деревня Черемисское, 168
Объект:
дом
Площадь:
235 /
Площадь участка:
23 сотки
Количество этажей:
2
Материал стен:
кирпич
Дом находится в Зелёном городе, задняя часть участка выходит на лес.
Проект современного дома с мансардой. Компактный корпус с двускатной крышей подчеркнут современными элементами: большим остеклением, простым мансардным окном, отделанным листовым металлом, стальными деталями балюстрады.
оптимальная полезная площадь
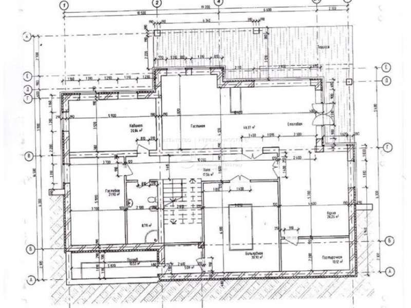
на первом этаже: кухня / объединенная жилая зона, включающая холл, двухуровневую гостиную и столовую, создает впечатление гораздо большего пространства / отдельная гостевая комната / большая котельная
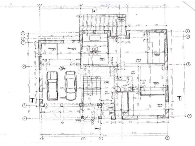
на мансарде: рабочая пристройка, расположенная на антресоли / спальня родителей с гардеробной / большие детские спальни
современный и оригинальный дизайн интерьера «открытое пространство» с двухуровневой гостиной и центральной лестницей
Дом построен из высококачественных материалов по европейскому проекту: материал стен монолит и керамический кирпич, утепление стен 150мм, фасад отделан штукатуркой
Фундамент УШП плита со встроенным водяным теплым полом
Пол второго этажа - монолитная плита со встроенным водяным теплым полом
Крыша : натуральная песчанно-цементная черепица, с утеплением 200мм
Большие панорамные энергосберегающие окна , с защитой от УФ
Пол первого этажа -керамогранит, второго -ламинат
Отопление: газовый котел с многоконтурным водяным полом 1 и 2 этажа
ГВС: бойлер косвенного нагрева 300л
Электрика: электрический щит на 72 автомата (каждая розетка и выключатель имеет свой автомат)
Канализация: септик ТОПАЗ 8 с выходом в дренажную систему (не требует откачки)
По всему участку выполнена дренажная система
Второй свет
На участке растут многочисленные плодовые деревья (яблони, груши, вишня, черешня, алыча -уже начали плодоносить) и кустарники(смородина черная и красная, крыжовник, малина, ежевика, голубика, жимолость)
также посажены многочисленные ели, кедры, горные сосны и множество других декоративных растений
Хозблок 150кв.м, каркасник, утепление 100мм, крыша металочерепица, свет, тепло, вода, канализация
Очень теплый и удобный для проживания дом, задняя часть участка соседствует с лесом. Есть возможность приобрести соседний участок 23 сотки для увеличения пространства.
Стадия строительства
сдан в эксплуатацию
Интернет
есть
Отопление
есть
Электричество
есть
Водопровод
есть
Газ
есть
Канализация
есть
Туалет
в доме
Торг уместен
да
Похожие предложения
Кстовский район, территория ДНП Земляничная Поляна
улица Золотой Ключик
417 м² / 15 соток
3 эт., кирпич
Позвонить
Ипотечный калькулятор
















