Нижегородская ярмарка
№ 2894993 К списку
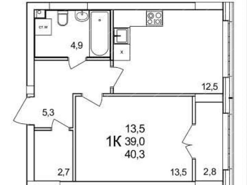
Продажа 1-комнатной квартиры в новостройке на д Анкудиновка, д. 41 (деревня Анкудиновка)
Кстовский район, Нижегородская область
4 748 100 руб. в ипотеку от 54 965 руб./мес.
Район:
Кстовский район
Комнат:
1 комната
Площадь:
39,9 / 13,1 / 15,2
Этаж / этажность:
2 / 25
Срок сдачи:
2024 г. сдан
Материал стен:
панель

Перейти на страницу дома

Подробное описание:

Продается 1 комн квартира на территории ЖК Анкудиновский парк. Квартира с отделкой, кухня-гостиная, большая прихожая 7 кв.м. На территории ЖК Анкудиновский парк   2 детских садика, школа, магазины. Автобусные направления конечная Кузнечика, Щербинки, пл. Сенная. Рядом ул. Романтиков, Ак. Сахарова, Ванеева. Срок сдачи - 1 квартал 2024 года. Окна во двор  Оказываем помощь в оформлении ипотеки по сниженной % ставке.                      Мы являемся официальными партнерами самых известных банков-   ПАО Сбербанк России-   Банк ВТБ ПАО  - ДОМ РФ и многие другие,   что поможет Вам оформить ипотеку без проблем и хлопот по выгодной % ставке, ниже, чем при прямом обращении в банк.Мы поможем решить одобрить ипотеку в офисе агентства, подав заявку сразу в несколько банков без вашего визита в банки, возможно одобрение, если нет первоначального взноса.Помощь с реализацией  материнского капитала.Юридическое сопровождение сделки.При покупки недвижимости в нашем агентстве приятные бонусы. 
Похожие предложения
20.12
4 350 000 руб.
185 106 руб./м²
в ипотеку от 50 357 руб./мес.
Кстовский район, дер. Утечино
5
23,5 м²
срок сдачи: 3 кв. 2026 г.
11 / 15 эт. монолитный железобетон
Позвонить
25.12
1/3
4 628 000 руб.
178 000 руб./м²
в ипотеку от 53 575 руб./мес.
Кстовский район, дер. Анкудиновка
примерно в 0,3 км на северо-восток от д.Анкудиновка, д.3 в ЖК КМ Анкудиновский парк, 47
26 м²
срок сдачи: 3 кв. 2026 г.
16 / 25 эт. блок+утеплитель
Позвонить
4 793 390 руб.
150 263 руб./м²
в ипотеку от 55 489 руб./мес.
Кстовский район, пос. Культура, Микрорайон «Новая Жизнь - Ройка»
ул. Развития
31,9 м²
срок сдачи: 4 кв. 2027 г.
3 / 4 эт. кирпич
Позвонить
22.10
4 478 830 руб.
141 288 руб./м²
в ипотеку от 51 848 руб./мес.
Кстовский район, пос. Культура, Микрорайон «Новая Жизнь - Ройка»
Микрорайон "Новая Жизнь", дом 22
31,7 м²
срок сдачи: 2 кв. 2027 г.
1 / 4 эт. кирпич
Позвонить