№ 2946169
Продажа 1-комнатной квартиры в новостройке в ЖК Савин парк, корпус 5 (деревня Утечино)
Кстовский район, Нижегородская область
4 983 000 руб.
в ипотеку от 56 825 руб./мес.
Район:
Кстовский район
Адрес:
деревня Утечино, ЖК Савин парк, корпус 5
Комнат:
1 комната
Площадь:
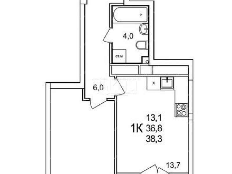
33 / 9,5 / 16
Этаж / этажность:
4 / 25
Срок сдачи:
1 кв. 2028 г.
Материал стен:
монолитный железобетон
Высота потолков:
2,68 м
Подробное описание:
Продаётся 1-комн.квартира площадью 33.00 кв.м на 4 этаже 25 этажного дома (Корпус 8, секция 1) проекта ПИК Савин парк. Светлый просторный подъезд на уровне земли, функциональная планировка, большие окна, с отделкой. <br> <br>Жилой квартал «Савин парк» возводится в Кстовском муниципальном районе, рядом с Советским районом Нижнего Новгорода. До центра Нижнего Новгорода всего 20 минут на автомобиле, а до города Кстово — 18 минут. <br> <br>В этом проекте есть всё для комфортной жизни. Кроме жилых домов , проект включает два детских сада, один из которых уже строится, школу и многоуровневые надземные паркинги. На первых этажах откроются кафе, магазины и другие сервисы — чтобы купить кофе к завтраку или пиццу на ужин, можно будет просто спуститься на лифте. На подземном этаже появятся кладовые, в которых удобно хранить крупные и сезонные вещи. <br> <br>Чтобы жители квартала чувствовали простор и получали больше солнечного света, мы построим дома разной высоты. Во дворах появятся уютные парки с детскими площадками и местами для отдыха — здесь можно поболтать с соседями, почитать в тени или позаниматься йогой. Спортивные площадки мы разместим так, чтобы шум от них не мешал жителям. <br> <br>В квартирах тоже будет много солнечного света за счёт балконов и больших окон. На выбор есть множество функциональных планировок, все они продуманы так, чтобы как можно большая площадь использовалась для жизни. Вы получите ключи от квартиры с уже готовой отделкой — можно заезжать и жить. <br> <br>На машине от «Савин парка» можно доехать до ТРЦ «МЕГА» за 7 минут, за 14 минут — до Анкудиновского леса, а за 20 — до «Щёлоковского хутора». Артикул - 985595
Санузел
совмещенный
Балкон
есть
Лифт
пассажирский
Мусоропровод
нет
Ипотека
да
Похожие предложения
Кстовский район, дер. Анкудиновка, ЖК Анкудиновский Парк
ул. Русская, д. 18
43,4 м²
срок сдачи: 2022 г. сдан 7 / 23 эт. панель
Позвонить
срок сдачи: 2022 г. сдан 7 / 23 эт. панель
Кстовский район, дер. Анкудиновка
примерно в 0,3 км на северо-восток от д.Анкудиновка, д.3 в ЖК КМ Анкудиновский парк, 47
26 м²
срок сдачи: 3 кв. 2026 г. 16 / 25 эт. блок+утеплитель
Позвонить
срок сдачи: 3 кв. 2026 г. 16 / 25 эт. блок+утеплитель
Обьявление неактуально
Кстовский район, Анкудиновка
примерно в 0,3 км на северо-восток от д.Анкудиновка, д.3 в ЖК КМ Анкудиновский парк
38,3 м²
срок сдачи: 2 кв. 2027 г. 20 / 25 эт. блок+утеплитель
Позвонить
срок сдачи: 2 кв. 2027 г. 20 / 25 эт. блок+утеплитель
Кстовский район, пос. Культура, Микрорайон «Новая Жизнь - Ройка»
ул. Развития
31,9 м²
срок сдачи: 4 кв. 2027 г. 3 / 4 эт. кирпич
Позвонить
срок сдачи: 4 кв. 2027 г. 3 / 4 эт. кирпич
Ипотечный калькулятор
