№ 2472992
Продажа 2-комнатной квартиры в новостройке на Окская улица, 4
Советский район, Нижний Новгород
4 349 984 руб.
в ипотеку от 50 356 руб./мес.
Район:
Советский район
Адрес:
Окская улица, 4
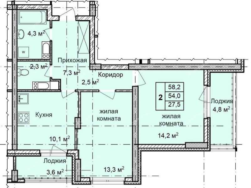
Комнат:
2 комнаты
Площадь:
58,2 / 27,5 / 11
Этаж / этажность:
24 / 25
Срок сдачи:
2018 г. сдан
Материал стен:
блок+утеплитель
Подробное описание:
Мечтаете о квартире в новом доме на берегу реки Тогда Вам к нам!
Квартира в ЖК Аквамарин сдается с отделкой под ключ:
Флизелиновые моющиеся обои на стенах
Коммерческий линолеум на полу
В санузлах плитка на полу и водоэмульсионная краска на стенах
Полное остекление квартиры и лоджии
Стальная ванна, раковина и унитаз в санузлах мойка на кухне
Входная металлическая дверь, межкомнатные МДФ
Электропроводка по всей квартире
Двухтарифный электрический счетчик со встроенным радиомодулем и автоматической передачей данных в управляющую компанию!
Поквартирная разводка к отопительным приборам, терморегуляторы
Градостроительной концепцией предусмотрено строительство:
многоуровневого паркинга,
здания общественного назначения,
детского сада.
Позвоните! И вы станете на шаг ближе к приобретению своего жилья!
Тип дома
улучшенное
Ипотечный калькулятор
