№ 2904729
Продажа 3-комнатной квартиры в новостройке на ул. Коперника, 1
Сормовский район, Нижний Новгород
9 502 905 руб.
в ипотеку от 110 008 руб./мес.
Район:
Сормовский район
Адрес:
Комнат:
3 комнаты
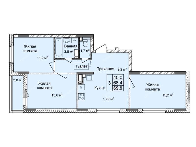
Площадь:
69,9 / 40 / 13,9
Этаж / этажность:
14 / 18
Срок сдачи:
2025 г. сдан
Перейти на страницу дома
Подробное описание:
В продаже большая трехкомнатная квартира стандартной планировки №111 расположенная в доме №1 (по генплану) в ЖК «Дома на Культуре». Расширить пространство проходной кухни позволяет отсутствие стенки между кухней и прихожей. Выход на лоджию из жилой комнаты. Раздельный санузел. Окна выходят на две стороны: на улицу и во двор.
Квартира сдаётся с отделкой уровня «комфорт». Предусмотрены натяжные потолки во всех комнатах, обои нейтрального оттенка, межкомнатные двери, гармонично дополняющие сдержанный стиль интерьера. В жилых зонах в качестве напольного покрытия используется ламинат. В кухне, прихожей, санузле и на лоджии – керамогранит. Отделка стен санузла плиткой, установка акриловой ванны. На окна устанавливается ПВХ-профиль с заполнением двухкамерным стеклопакетом. Холодная лоджия застеклена.
Сормовский район. Остановки общественного транспорта расположены в 5 минутах ходьбы. Железнодорожная станция - в 10 минутах ходьбы. Удобный выезд на ул. Культуры. Новая транспортная развязка позволяет добраться до жилого комплекса без пробок. Жилой комплекс находится в центре развитой инфраструктуры. В шаговой доступности - детские сады, школа, продовольственные магазины, аптеки, поликлиники, почтовое отделение.
Срок сдачи – 3 квартал 2025 г.
Официальный застройщик - ООО СЗ «Виктория НН».
Мусоропровод
нет
Ипотечный калькулятор
