№ 2922055
Продажа квартиры-студии в новостройке на ул. Черкесская, д. 19 (деревня Анкудиновка)
Кстовский район, Нижегородская область
4 377 100 руб.
в ипотеку от 49 915 руб./мес.
Район:
Кстовский район
Комнат:
студия
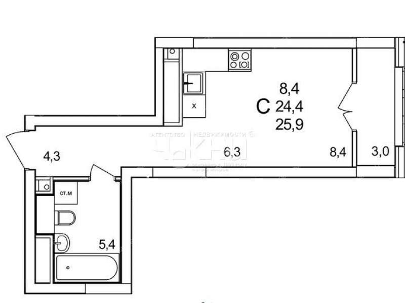
Площадь:
25,9 / 8,3 / 1
Этаж / этажность:
3 / 25
Срок сдачи:
2023 г. сдан
Материал стен:
панель
Высота потолков:
2,65 м
Перейти на страницу дома
Подробное описание:
Вашему вниманию предлагается уютная и светлая студия на 3 этаже 25-этажного дома общей площадью 25.9 кв.м. в новом современном жилом комплексе КМ Анкудиновский парк.
Данная студия идеально подойдет для тех, кому важен комфорт и удобство. В студии сделан свежий современный ремонт, что обеспечивает отличное сочетание цена-качество. Вам не придется тратить много времени и сил на дополнительные работы - просто заезжайте и наслаждайтесь комфортом.
КМ Анкудиновский парк находится в живописном районе, рядом с лесным массивом, ботаническим садом и музеем-заповедником Щелоковский хутор. В комплексе уже открыты детские сады и школа, а также проводится строительство второй школы, что делает его идеальным местом для семей с детьми.
Квартира оборудована кухонным гарнитуром и встроенной техникой, что сэкономит вам время и средства на обустройство кухни. Кроме того, данная квартира подходит под господдержку, семейную и IT-ипотеку, что делает ее доступной для широкого круга покупателей.
Не упустите возможность стать обладателем этой уютной квартиры в новом жилом комплексе с развитой инфраструктурой. Рядом с домом расположены детский сад, школа, продуктовый магазин, что обеспечивает комфортное проживание для всей семьи.
Звоните нам прямо сейчас, чтобы узнать больше информации и записаться на просмотр квартиры. Поторопитесь, количество квартир ограничено, и это может быть ваш шанс на приобретение идеального жилья по выгодной цене!
Агентство недвижимости «Монолит» профессионально помогает с оформлением ипотеки: сбор и подача всех необходимых документов, оперативное рассмотрение заявки, помощь в получении сниженной процентной ставки, осуществляем юридическое сопровождение сделки. Оказываем весь комплекс услуг по покупке квартиры в режиме одного окна (страховка, оценка, выездная регистрация, военная ипотека, маткапитал, подбор новостроек).
Номер объекта: #41/1578736/11523
Балкон
есть
Похожие предложения
Кстовский район, дер. Анкудиновка
примерно в 0,3 км на северо-восток от д.Анкудиновка, д.3 в ЖК КМ Анкудиновский парк
25,9 м²
срок сдачи: 3 кв. 2026 г. 24 / 25 эт. блок+утеплитель
Позвонить
срок сдачи: 3 кв. 2026 г. 24 / 25 эт. блок+утеплитель
Кстовский район, дер. Утечино, ЖК Савин парк
ул. Небесная, 6
19,7 м²
срок сдачи: 3 кв. 2026 г. 3 / 15 эт. панель
Позвонить
срок сдачи: 3 кв. 2026 г. 3 / 15 эт. панель
Ипотечный калькулятор
