№ 2956371
Продажа квартиры-студии в новостройке в границах улиц Страж Революции, Гвардейцев, 50-летия Победы, Евгения Никонова, 17
Московский район, Нижний Новгород
6 660 000 руб.
в ипотеку от 75 949 руб./мес.
Район:
Московский район
Адрес:
в границах улиц Страж Революции, Гвардейцев, 50-летия
Победы, Евгения Никонова, 17
Комнат:
студия
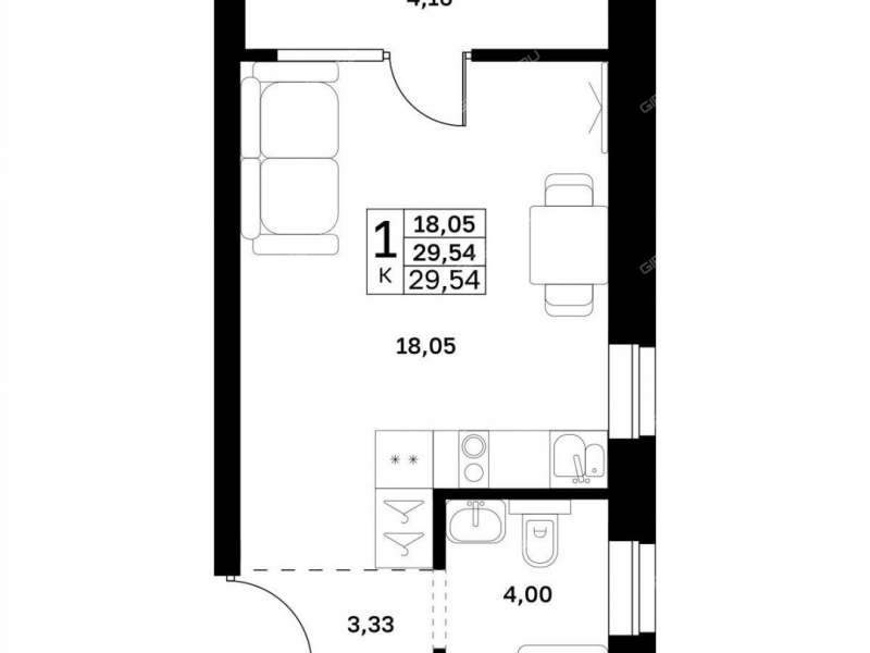
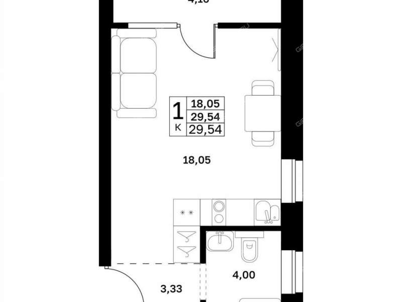
Площадь:
29,54 / 18,05 / 1
Этаж / этажность:
2 / 17
Срок сдачи:
1 кв. 2027 г.
Материал стен:
монолитный железобетон
Высота потолков:
Подробное описание:
Мусоропровод
нет
ООО СЗ "Андор Инвест"
СЗ «Андор»
Телефоны продавца
Похожие предложения
Нижний Новгород, Московский район, ЖК Авиатор
ул. Красных Зорь
28,26 м²
срок сдачи: 4 кв. 2026 г. 9 / 16 эт. блок+утеплитель
Позвонить
срок сдачи: 4 кв. 2026 г. 9 / 16 эт. блок+утеплитель
Ипотечный калькулятор








