№ 2960039
Продажа 1-комнатной квартиры на ул. Деловая, д. 22
Нижегородский район, Нижний Новгород
7 679 155 руб.
в ипотеку от 87 571 руб./мес.
Район:
Нижегородский район
Адрес:
Комнат:
1 комната
Площадь:
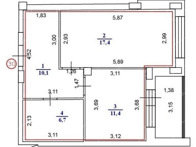
49,9 / 17,4 / 11,4
Этаж / этажность:
1 / 10
Год постройки:
2023
Материал стен:
блок+утеплитель
Высота потолков:
2,7 м
Перейти на страницу дома
Подробное описание:
Продаю квартиру в новом доме (сдан в 2023г). Развитая инфраструктура, отличная транспортная развязка, магазины, ПВЗ, школы,
детсады, медицинские учреждения и т.д. Рядом ТРЦ «Фантастика», гипермаркет «Лента» и пр.
Закрытая дворовая территория с круглосуточным видеонаблюдением, концепция "двор без машин", охрана, подземная и наземная парковки,
детская и спортивная площадки.
Есть возможность приобрести ситибоксы на цокольном этаже дома.
Квартира без отделки, выполнена стяжка пола, электрика введена в квартиру до счетчика, газовая плита установлена, вид во двор.
Ипотека льготная ( семейная, IT ) возможна. Чистая продажа, вся сумма в договоре.
Просмотр в дневное время.
Тип жилья
другой
Санузел
совмещенный
Лоджия
есть
Лифт
пассажирский, грузовой
Кухонная плита
газовая
Горячая вода
центральное водоснабжение
Парковка
подземная
Торг уместен
да
Ипотека
да
Похожие предложения
Нижний Новгород, Нижегородский район, Печёрская долина
ул. Родионова, д. 193 к4
39,9 м²
1 / 6 эт. кирпич
Позвонить
Нижний Новгород, Нижегородский район, ЖК Печерская Гряда
ул. Богдановича, д. 8
41,7 м²
9 / 17 эт. панель
Позвонить
Нижний Новгород, Нижегородский район, ЖК Гелиос
ул. Композитора Касьянова, д. 11
39,8 м²
10 / 25 эт. блок+утеплитель
Позвонить
Нижний Новгород, Нижегородский район, 5-й микрорайон
ш. Казанское, д. 23 к1
40,3 м²
5 / 10 эт. панель
Позвонить
Ипотечный калькулятор







