№ 2958094
Продажа 1-комнатной квартиры на ул. Родионова, д. 167 к1
Нижегородский район, Нижний Новгород
8 250 000 руб.
в ипотеку от 94 080 руб./мес.
Район:
Нижегородский район
Адрес:
Комнат:
1 комната
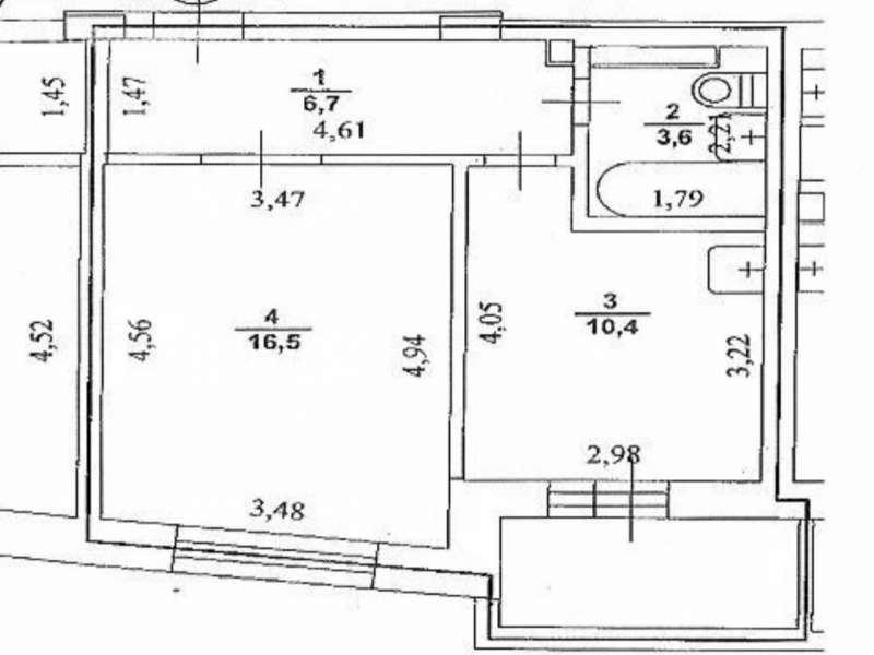
Площадь:
37,2 / 16,5 / 10,4
Этаж / этажность:
8 / 17
Год постройки:
2011
Материал стен:
блок+утеплитель
Высота потолков:
2,55 м
Перейти на страницу дома
Подробное описание:
Вашему вниманию предлагается однокомнатная квартира в Нижегородском р-не на 8 этаже 17-этажного дома 2011 г. п. на ул. Родионова 167 к 1 (ТРЦ «Ганза», ост. «Медвежья долина», близко новая ст. метро "Сенная" будет запущена в 2026 году).
Отличный вариант, с обновленным ремонтом в 2025 г., готовый для комфортного проживания и инвестиций под сдачу в аренду! Остается вся мебель и техника! Заезжайте и живите!
Дом расположен на своей закрытой территории, въезд через два шлагбаума, всегда есть место для парковки, своя детская площадка и придомовая территория для прогулок. Входная группа с пандусом, в подъезде 2 лифта: грузовой и пассажирский. На этаже установлена дополнительная запираемая дверь (доступна только проживающим на этаже). Двойная входная дверь в квартиру. Разумная плата за ЖКУ.
Уютная квартира, функциональной планировки, общей площадью 37.20 кв. м., кухня - 10,4 кв. м. c выходом на большую утепленную лоджию. Бесценные квадратные метры, увеличивающие пространство кухни и полезную площадь, на которых можно организовать кабинет, систему хранения, лаунж - зону с террасой. Стеклопакеты ПВХ.
В квартире сделан ремонт в светлых тонах. Смонтированы матовые натяжные потолки, новые межкомнатные двери. Стены выравнены. В комнате установлен новый стеклопакет. Обновлено напольное покрытие в комнате, прихожей, кухне - линолеум. Ванная комната в плитке, установлена новая сантехника (раковина, унитаз, ванна). Кухня оснащена функциональным кухонным гарнитуром и техникой: электрическая плита, вытяжка, холодильник, стиральная машина LG, микроволновая печь.
Квартира полностью готова к проживанию, вся мебель и техника остаются, что позволяет новым владельцам заселиться сразу после сделки!
Объекты социальной инфраструктуры рядом: ТРЦ «Ганза», «Фантастика», строительные магазины «Оби», «Ордер», гипермаркет «Гипер Лента», «Ашан», «М. Видео», станция Канатной дороги «Нижегородская», колесо обозрения «Колесо НиНо», Вознесенский Печерский мужской монастырь, ФОК, продуктовые магазины, Нижегородская областная клиническая больница имени Н.А. Семашко, взрослая поликлиника №7, детская поликлиника №22, детские сады, школа по прописке №30 им. Л. Л. Антоновой.
Хорошая транспортная развязка, до центра города 10 минут, строится новая ст. метро "Сенная" будет запущена в 2026 году.
Квартира без обременений. Один взрослый собственник. Свободна для проживания. Чистая продажа. Быстрый выход на сделку.
ОСТАЛИСЬ ВОПРОСЫ, ЕСТЬ ЖЕЛАНИЕ ПОСМОТРЕТЬ – ЗВОНИТЕ!
Тип жилья
другой
Тип комнат
раздельные
Ремонт
типовой
Санузел
совмещенный
Лоджия
есть
Лифт
пассажирский, грузовой
Кухонная плита
электрическая
Горячая вода
центральное водоснабжение
Парковка
во дворе
Ипотека
да
Похожие предложения
Нижний Новгород, Нижегородский район, Печёрская долина
ул. Родионова, д. 193 к4
39,9 м²
1 / 6 эт. кирпич
Позвонить
Нижний Новгород, Нижегородский район, Печёрская долина
ул. Деловая, д. 24 к2
47,5 м²
1 / 10 эт. блок+утеплитель
Позвонить
Нижний Новгород, Нижегородский район, Печёрская долина
ул. Родионова, д. 193 к2
42 м²
7 / 10 эт. кирпич
Позвонить
Ипотечный калькулятор













