№ 2972171
Продажа 2-комнатной квартиры на ул. Дальняя, д. 10
Нижегородский район, Нижний Новгород
19 200 000 руб.
в ипотеку от 222 264 руб./мес.
Район:
Нижегородский район
Адрес:
Комнат:
2 комнаты
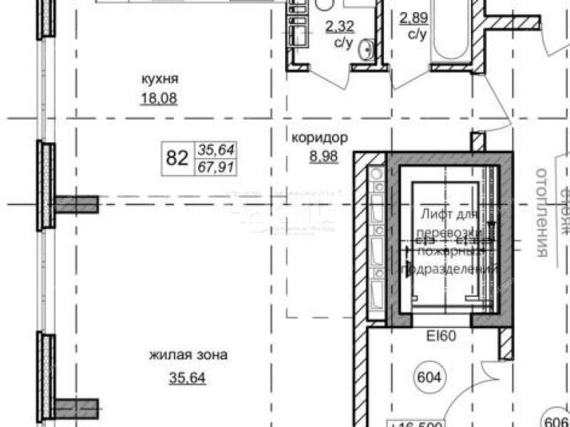
Площадь:
68,5 / 35,64 / 18,08
Этаж / этажность:
6 / 8
Год постройки:
2025
Материал стен:
панель
Высота потолков:
3 м
Перейти на страницу дома
Подробное описание:
Уникальное предложение в современном жилом комплексе бизнес-класса ЖК Дом на Барминской!
Продаётся просторная квартира с идеальной планировкой и панорамными видами.
Ключевые преимущества:
Выгодная инвестиция и будущее комфортной жизни: Идеальный объект для вложения средств или для создания квартиры своей мечты с нуля.
Отличная планировка: Общая площадь 68,5 м, что включает в себя уютную жилую зону 35,64 м и невероятно просторную кухню-гостиную площадью 18,08 м.
-Без отделки ): Вы получите чистую квартиру и сможете реализовать любой дизайн-проект под свой вкус.
-Вид из окон: Престижные виды на реку и закрытая территория. Светлая и солнечная квартира.
Детали:
Дом сдан!!!
Этаж: 6
Высота потолков: от 3,1 м
Один собственник.
Идеальное предложение для инвестиций или будущего комфортного проживания.
Есть возможность приобрести парковку (машино-место) 13,25 м.кв. и кладовку 4,03 кв. м. за отдельную плату (цена по запросу).
Тип жилья
другой
Телефоны продавца
Похожие предложения
Нижний Новгород, Нижегородский район, ЖК Симфония Нижнего
ул. Максима Горького, д. 70
41,7 м²
4 / 9 эт. блок+утеплитель
Позвонить
Нижний Новгород, Нижегородский район, ЖК Сердце Нижнего
ул. Ильинская, д. 62А
49,9 м²
2 / 6 эт. блок+утеплитель
Позвонить
Ипотечный калькулятор













