№ 2688065
Продажа 4-комнатной квартиры (село Работки, Садовая, 4)
Кстовский район, Нижегородская область
1 750 000 руб.
в ипотеку от 20 258 руб./мес.
Район:
Кстовский район
Адрес:
село Работки, Садовая, 4
Комнат:
4 комнаты
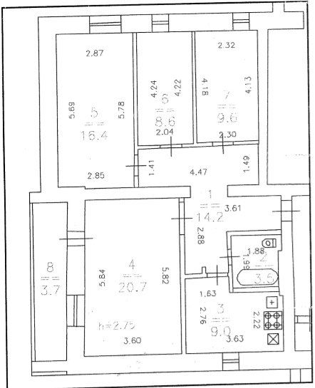
Площадь:
85,7 / 55,3 / 9
Этаж / этажность:
2 / 3
Год постройки:
2007
Материал стен:
кирпич
Высота потолков:
2,75 м
Подробное описание:
Продажа от собственника. 4-х комнатная квартира с лоджией, на 2ом этаже трех этажного кирпичного дома. Метраж и планировка на фото. Высота потолков 2,7 м. Стены отштукатурены, пол стяжка. Индивидуальное отопление - установлен двухконтурный газовый котел. Торг.
Тип жилья
другой
Тип комнат
раздельные
Ремонт
требуется ремонт
Санузел
совмещенный
Телефон
нет
Интернет
нет
Мебель в комнатах
нет
Мебель на кухне
нет
Кухонная плита
газовая
Горячая вода
газовая колонка
Мусоропровод
нет
Наличие охраны
нет
Торг уместен
да
Дмитрий
Телефоны продавца
Ипотечный калькулятор




