№ 2940753
Продажа помещения на ш. Московское, д. 175
Московский район, Нижний Новгород
8 750 000 руб.
Район:
Московский
Адрес:
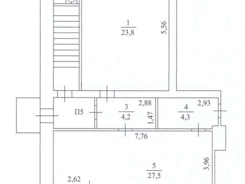
Площадь:
57 м²
Этаж / этажность:
1 / 5
Высота потолков:
Отдельный вход:
Объект:
помещение в жилом доме
Назначение:
торговое
В продажу отличное торговое помещение с стабильным арендатором. Помещение имеет отдельный вход с красной линии, большую вывеску для рекламы и оборудованное входное крыльцо. Выполнен качественный косметический ремонт- пол в плитке, обои под покраску, потолок Армстронг. Мощность 15 кВт. Свой санузел. Кондиционер в наличии. Густонаселённый район города, развитая инфраструктура. Звоните, все вопросы по телефону.
Телефоны продавца
Похожие предложения
8 350 000 руб.
147 788 руб./м²
Нижний Новгород, Московский район
ш. Московское, д. 175
56,5 м²
торговое
салоны красоты
Позвонить
салоны красоты
7 900 000 руб.
123 053 руб./м²
Нижний Новгород, Московский район
ул. Героя Рябцева, д. 23
64,2 м²
торговое
Позвонить














