№ 2957049
Продажа помещения на ул. Варварская, д. 40
Нижегородский район, Нижний Новгород
40 742 000 руб.
Район:
Нижегородский
Адрес:
ул. Варварская, д. 40
Площадь:
313,4 м²
Год постройки:
2007
Этаж / этажность:
6 / 6
Высота потолков:
2,5 м
Объект:
помещение в нежилом здании
Предлагаем Вашему вниманию офисное помещение площадью 313,4 м. кв. в исторической части города!!!
Помещение находится по адресу: Нижний Новгород, ул. Варварская, дом 40. Этаж 6 – мансардный. Рядом с домом расположена действующая часовня, построенная в 1899г. (историческое наследие).
Важно: помещение в настоящий момент сдаётся в аренду надёжному, платёжеспособному арендатору, поэтому предложение можно рассматривать и как готовый бизнес в том числе.
Преимущества объекта:
1.Идеальное месторасположение:
- самый центр города (пл. Свободы)
- рядом в шаговой доступности магазины, рестораны, Нижегородский Кремль, администрация города
- отличная транспортная доступность, остановка в 1мин.ходьбы, хорошая транспортная развязка. Рядом заканчивается строительство метро (станция пл. Свободы), что в разы повысит финансовую привлекательность объекта и гарантирует рост стоимости недвижимости после окончания строительства!!!
2. Удобство помещения:
- современный ремонт
- удобная, оборудованная всем необходимым, зона кухни (забота о Вас и Ваших сотрудниках)
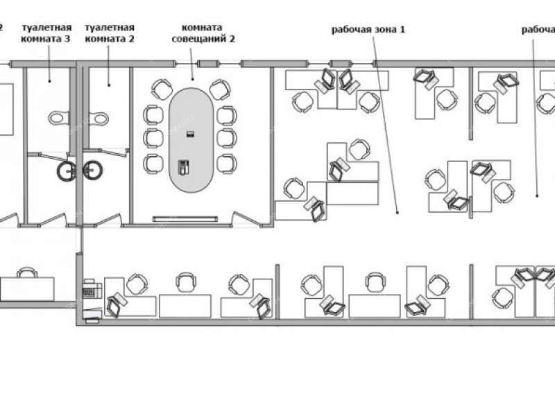
- 3 санузла
- удобные и вместительные зоны хранения (полки, стеллажи), а также 3 кладовых комнаты
- светлые и просторные помещения офиса, разделённые между собой в современном концептуальном стиле с одним общим коридором. Это 4 кабинета и 3 опенспейса (формат, в котором рабочие места расположены в едином зале без перегородок) Такой подход актуален и направлен на оптимизацию коммуникации между сотрудниками и рациональное использование площади
- зимой в пощении тепло и уютно, а летом - прохладно благодаря системе кондиционирования.
- в здании имеется лифт
Таким образом помещение идеально подходит для бизнеса и предполагает огромные возможности использования исходя из Ваших предпочтений:
- под офисы
- коворкинг или представительства организаций
- турагентство
- call-центры
- шоурумы
- страховые компании
- и другое
Такой офис всегда в «спросе» у арендаторов, поэтому никогда не будет простаивать.
Просто безукоризненный вариант для Ваших инвестиций!!
Цена 130 тыс.руб. – кв.м., итого – 40 742 000 руб.
Готовы ответить на Ваши звонки и сообщения, а также приглашаем Вас на просмотр в любое удобное для Вас время!!
Ремонт
есть
Интернет
есть
Мебель
есть























